Tout d’abord, merci de nous contacter.
Nous avons reçu votre demande concernant la référence du bien:GE2-26874. Un de nos agents vous contactera dans les meilleurs délais.
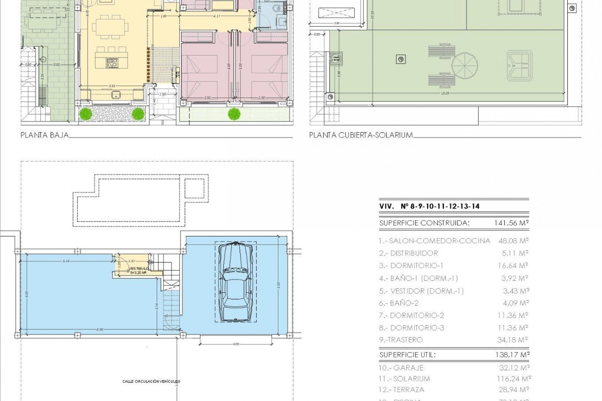
Villas neuves à vendre à Torrevieja - 2 km de la mer Découvrez ces superbes villas neuves situées dans le quartier recherché de Torrevieja, à seulement 2 km de la côte méditerranéenne. Offrant un mélange parfait de luxe, de confort et de praticité, ces maisons de 3 chambres et 2 salles de bains sont conçues pour ceux qui recherchent un style de vie sophistiqué avec tous les avantages de la vie côtière. Conception spacieuse et finitions de haute qualité Ces villas de plain-pied ont été conçues pour offrir un maximum de confort et de facilité de vie. Avec un plan ouvert, elles offrent un vaste espace pour la détente et le divertissement. Les villas présentent des finitions de haute qualité, notamment des fenêtres en aluminium à rupture de pont thermique, du double vitrage Climalit et la pré-installation d'un système d'air conditionné. Pour plus de commodité, les maisons comprennent des volets électriques, des salles de bains modernes avec des bacs à douche en résine et des robinets noirs intégrés, ainsi qu'un parking privé dans le garage souterrain avec un espace de stockage supplémentaire. Piscine privée et solarium avec vue imprenable Sortez dans votre oasis privée, où vous pourrez profiter du luxe d'une piscine privée dans votre propre jardin. Depuis le solarium sur le toit, profitez de la vue imprenable sur la lagune salée de La Mata et les environs, et admirez les spectaculaires couchers de soleil chaque soir. La propriété est située dans la partie la plus élevée de Torrevieja, ce qui garantit à la fois l'intimité et des vues impressionnantes. Aménagements communautaires exclusifs Le projet propose plusieurs équipements collectifs, notamment des jardins paysagers, un circuit de gymnastique suédoise et un terrain de pétanque, parfaits pour se détendre et se divertir. Que vous passiez du temps seul ou que vous vous réunissiez avec vos voisins, cette villa offre un environnement parfait pour une vie paisible et une interaction dynamique avec la communauté. Situation privilégiée à Torrevieja Ces villas sont entourées de services essentiels et d'options de loisirs. L'aéroport d'Alicante-Elche se trouve à 45 minutes en voiture (43 km), ce qui facilite les déplacements internationaux. Pour le shopping et la restauration, le centre commercial Habaneras est à seulement 3 km, offrant une variété de magasins, de restaurants et d'options de divertissement. Découvrez le style de vie méditerranéen Torrevieja, sur la côte sud d'Alicante, bénéficie de plus de 300 jours de soleil par an et d'une température moyenne annuelle agréable de 20°C. La ville est réputée pour ses belles plages, ses promenades animées et sa délicieuse cuisine méditerranéenne, ce qui en fait l'endroit idéal pour la détente et l'aventure. Avec ses activités familiales et son riche patrimoine culturel, Torrevieja promet un mode de vie épanouissant tout au long de l'année. La maison de vos rêves vous attend Ne manquez pas l'occasion de posséder une villa de luxe dans l'une des villes côtières les plus prisées d'Espagne. Que vous soyez à la recherche d'une résidence permanente ou d'une retraite de vacances, ce développement exclusif offre le cadre idéal pour expérimenter le meilleur de la vie méditerranéenne. Planifiez une visite dès aujourd'hui et faites le premier pas pour que la maison de vos rêves devienne une réalité !