Allereerst bedankt dat je contact met ons hebt opgenomen.
We hebben uw verzoek met betrekking tot de eigenschap referentie ontvangen:GE2-26874. Een van onze agenten neemt zo snel mogelijk contact met u op.
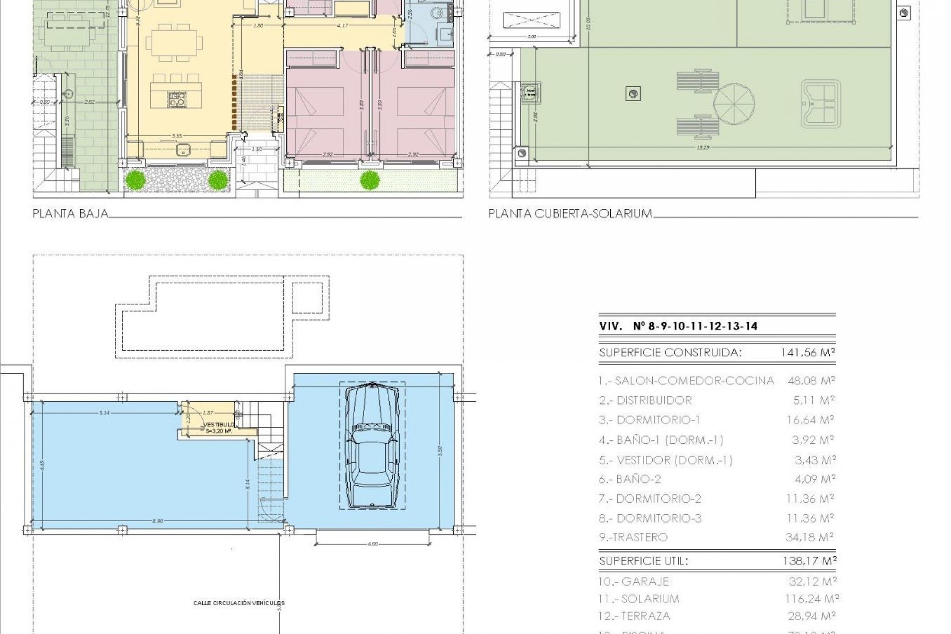
Nieuwe villa's te koop in Torrevieja - 2 km van de zee Ontdek deze prachtige nieuwe villa's gelegen in het gewilde gebied van Torrevieja, op slechts 2 km van de Middellandse Zee. Het aanbieden van de perfecte mix van luxe, comfort en functionaliteit, zijn deze 3-slaapkamer, 2-badkamer woningen ontworpen voor degenen die op zoek zijn naar een verfijnde levensstijl met alle voordelen van het leven aan de kust. Ruim ontwerp en hoogwaardige afwerking Deze gelijkvloerse villa's zijn zorgvuldig ontworpen voor maximaal comfort en woongemak. Met een open indeling bieden ze voldoende ruimte voor ontspanning en entertainment. De villa's zijn afgewerkt met hoogwaardige materialen, waaronder aluminium ramen met thermische onderbreking, Climalit dubbele beglazing en voorgeïnstalleerde airconditioning. Voor extra gemak zijn de woningen voorzien van elektrische rolluiken, moderne badkamers met douchebakken van hars en ingebouwde zwarte kranen, en een eigen parkeerplaats in de ondergrondse garage met extra bergruimte. Privézwembad en solarium met prachtig uitzicht Stap naar buiten naar je privéoase, waar je kunt genieten van de luxe van een privézwembad in je eigen tuin. Geniet vanaf het solarium op het dak van het adembenemende uitzicht op de zoutlagune van La Mata en de omgeving, en geniet elke avond van spectaculaire zonsondergangen. De woning is gelegen in het hoogste deel van Torrevieja, waardoor je verzekerd bent van zowel privacy als een indrukwekkend uitzicht. Exclusieve gemeenschappelijke voorzieningen De ontwikkeling biedt verschillende gemeenschappelijke voorzieningen, waaronder aangelegde tuinen, een calisthenics circuit, en een jeu de boules baan, perfect voor zowel ontspanning en recreatie. Of u nu geniet van tijd alleen of socialiseren met buren, deze villa biedt de perfecte omgeving voor zowel vreedzaam wonen en levendige gemeenschap interactie. Toplocatie in Torrevieja Deze villa's zijn omgeven door essentiële diensten en recreatieve opties. De luchthaven van Alicante-Elche ligt op slechts 45 minuten met de auto (43 km), waardoor internationaal reizen gemakkelijk is. Om te winkelen en te dineren, ligt het Habaneras Shopping Center op slechts 3 km afstand, met een verscheidenheid aan winkels, restaurants en entertainment opties. Ervaar de mediterrane levensstijl Torrevieja, aan de zuidkust van Alicante, heeft meer dan 300 dagen zon per jaar en een aangename gemiddelde jaartemperatuur van 20°C. De stad staat bekend om zijn prachtige stranden, levendige promenades, en heerlijke mediterrane keuken, waardoor het de perfecte plek voor zowel ontspanning en avontuur. Met zijn gezinsvriendelijke activiteiten en rijke culturele erfgoed, Torrevieja belooft een bevredigende levensstijl het hele jaar door. Uw droomhuis wacht Mis de kans niet om een luxe villa in een van de meest populaire kuststeden van Spanje te bezitten. Of u nu op zoek bent naar een permanente verblijfplaats of een vakantie retraite, deze exclusieve ontwikkeling biedt de ideale setting om het beste van het mediterrane leven te ervaren. Plan vandaag nog een bezichtiging en zet de eerste stap om je droomhuis werkelijkheid te laten worden!