Dziękujemy za kontakt z naszym biurem
We have received your request regarding the property reference: GE2-26874. One of our agents will contact you as soon as possible.
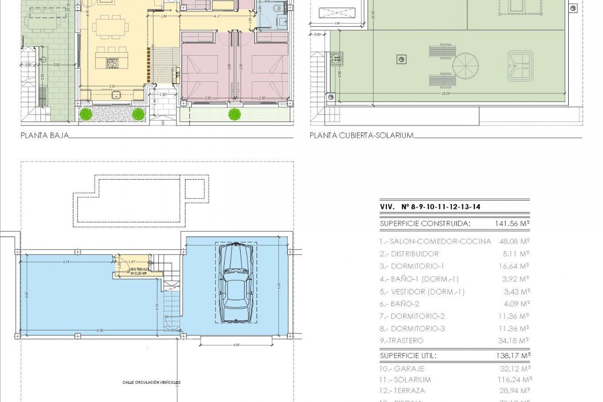
Nowe wille na sprzedaż w Torrevieja - 2 km od morza Odkryj te wspaniałe nowe wille położone w poszukiwanej okolicy Torrevieja, zaledwie 2 km od wybrzeża Morza Śródziemnego. Oferując idealne połączenie luksusu, komfortu i praktyczności, te domy z 3 sypialniami i 2 łazienkami zostały zaprojektowane dla tych, którzy szukają wyrafinowanego stylu życia ze wszystkimi zaletami życia na wybrzeżu. Przestronny design i wysokiej jakości wykończenia Te jednopiętrowe wille zostały starannie zaprojektowane z myślą o maksymalnym komforcie i łatwości życia. Dzięki otwartemu układowi zapewniają dużo miejsca na relaks i rozrywkę. Wille charakteryzują się wysokiej jakości wykończeniem, w tym aluminiowymi oknami z przegrodą termiczną, podwójnymi szybami Climalit i wstępną instalacją klimatyzacji kanałowej. Dla dodatkowej wygody domy wyposażone są w elektryczne żaluzje, nowoczesne łazienki z brodzikami z żywicy i wbudowanymi czarnymi bateriami oraz prywatny parking w garażu podziemnym z dodatkowym miejscem do przechowywania. Prywatny basen i solarium ze wspaniałymi widokami Wyjdź na zewnątrz do swojej prywatnej oazy, gdzie możesz cieszyć się luksusem prywatnego basenu we własnym ogrodzie. Z solarium na dachu można podziwiać zapierające dech w piersiach widoki na słoną lagunę La Mata i okolicę, a każdego wieczoru podziwiać spektakularne zachody słońca. Nieruchomość znajduje się w najwyższej części Torrevieja, zapewniając zarówno prywatność, jak i imponujące widoki. Ekskluzywne udogodnienia dla społeczności Osiedle oferuje kilka wspólnych udogodnień, w tym zagospodarowane tereny ogrodowe, tor do kalisteniki i obszar do gry w petanque, idealne zarówno do relaksu, jak i rekreacji. Niezależnie od tego, czy spędzasz czas samotnie, czy spotykasz się z sąsiadami, ta willa zapewnia idealne środowisko zarówno do spokojnego życia, jak i żywej interakcji ze społecznością. Doskonała lokalizacja w Torrevieja Wille te otoczone są niezbędnymi usługami i opcjami rekreacyjnymi. Lotnisko Alicante-Elche znajduje się zaledwie 45 minut jazdy samochodem (43 km), dzięki czemu podróże międzynarodowe są wygodne. Centrum handlowe Habaneras oddalone jest o zaledwie 3 km, oferując różnorodne sklepy detaliczne, restauracje i opcje rozrywki. Poznaj śródziemnomorski styl życia Torrevieja, na południowym wybrzeżu Alicante, szczyci się ponad 300 słonecznymi dniami w roku i przyjemną średnią roczną temperaturą 20°C. Miasto słynie z pięknych plaż, tętniących życiem promenad i pysznej kuchni śródziemnomorskiej, dzięki czemu jest idealnym miejscem zarówno na relaks, jak i przygodę. Dzięki przyjaznym rodzinom zajęciom i bogatemu dziedzictwu kulturowemu Torrevieja obiecuje satysfakcjonujący styl życia przez cały rok. Twój wymarzony dom czeka Nie przegap szansy na posiadanie luksusowej willi w jednym z najbardziej pożądanych nadmorskich miast Hiszpanii. Niezależnie od tego, czy szukasz stałego miejsca zamieszkania, czy wakacyjnego wypoczynku, ta ekskluzywna inwestycja oferuje idealne warunki, aby doświadczyć tego, co najlepsze w śródziemnomorskim życiu. Zaplanuj oglądanie już dziś i zrób pierwszy krok w kierunku urzeczywistnienia swojego wymarzonego domu!