Nieuwbouw » Villa » Fuente Álamo » La

Villa · Nieuwbouw Las Palas · Fuente Álamo · Murcia · Costa Calida - Inland

Villa · Nieuwbouw Las Palas · Fuente Álamo · Murcia · Costa Calida - Inland

SLEUTELKLARE HALFVRIJSTAANDE VILLA IN FUENTE ALAMO, MURCIA

Kenmerken

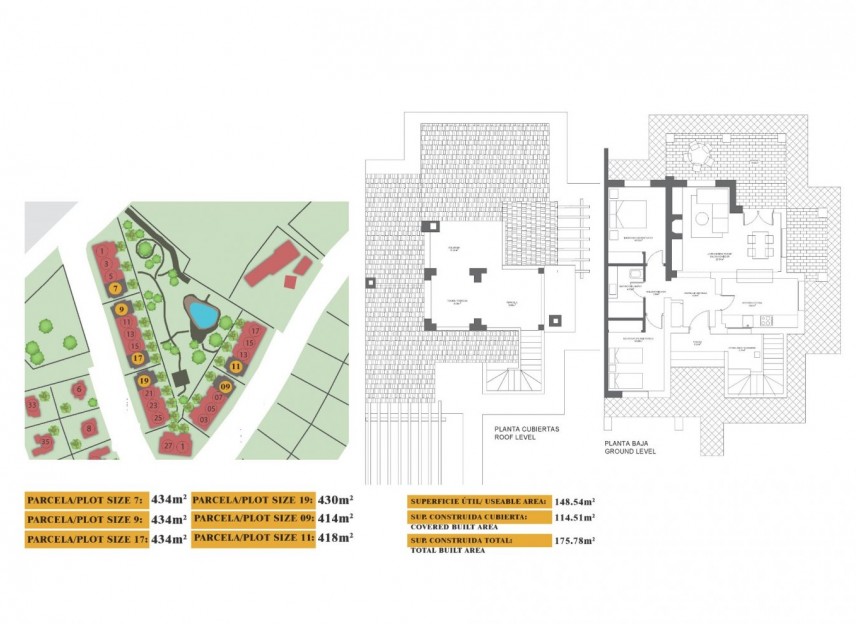
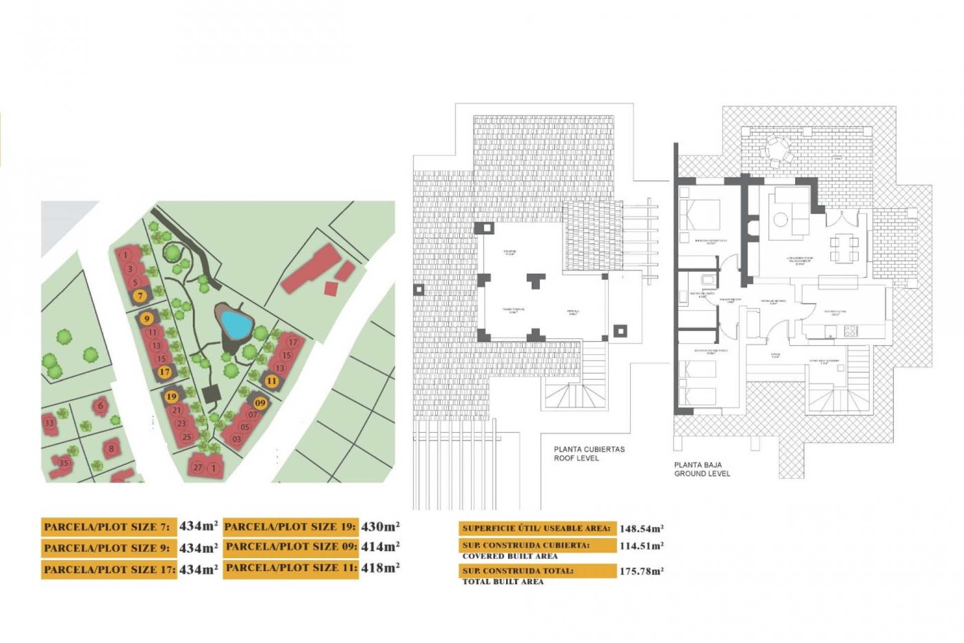
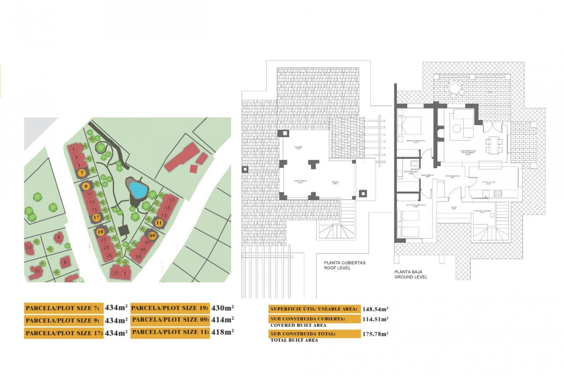
  • Totale oppervlakte 175m2
  • Plot 430m2
  • Slaapkamers 2
  • Badkamers 1
·    Nuttig: 148m2
·    Afstand naar het strand: 7500 Mts.
·    Sleutel gereed
·    Omheind
·    Terras: 45 m².
·    Aantal parkeerplaatsen: 1
·    Airconditioning: vooraf geïnstalleerd
·    Tuin
·    In de buurt van golf- / golfresorteigendom
·    Dubbele slaapkamers: 2
·    Parkeerplaats
·    Locatie: Kust, Landelijk, Urbanisatie
·    Strand: 7500 meter
·    Bruikbare bouwruimte: 148 Msq.
·    Storage / Trastero

Beschrijving

Plaats

Een vraag stellen

Verwerkingsverantwoordelijke: Costa Blanca Flamenca SL, Doeleinde van de verwerking: Beheer en controle van de diensten die worden aangeboden via de website van vastgoeddiensten, Verzenden van informatie via nieuwsbrieven en andere, Grondslag: Met toestemming, Ontvangers: De gegevens worden niet doorgegeven, behalve voor het opstellen van de boekhouding, Rechten van de betrokkenen: Toegang krijgen tot, corrigeren en verwijderen van gegevens, verzoeken om de overdraagbaarheid ervan, bezwaar maken tegen de verwerking en verzoeken om de beperking ervan, Bron van de gegevens: De betrokkene zelf, Aanvullende informatie: U kunt de aanvullende en gedetailleerde informatie over gegevensbescherming raadplegen hier.

Spanje Wijs

Wegwijs in Spanje met onze wegwijzer.

Jouw droomleven in Spanje begint met onze handige gids! In 4 stappen maken we jou wegwijs onder de Spaanse zon.

Download nu
WhatsApp
search