Nouvelle construction » Villa » Fuente Álam

Villa · Nouvelle construction Las Palas · Fuente Álamo · Murcia · Costa Calida - Inland

Villa · Nouvelle construction Las Palas · Fuente Álamo · Murcia · Costa Calida - Inland

VILLA JUMELÉE PRÊTE À L'EMPLOI À FUENTE ALAMO, MURCIA

Les caractéristiques

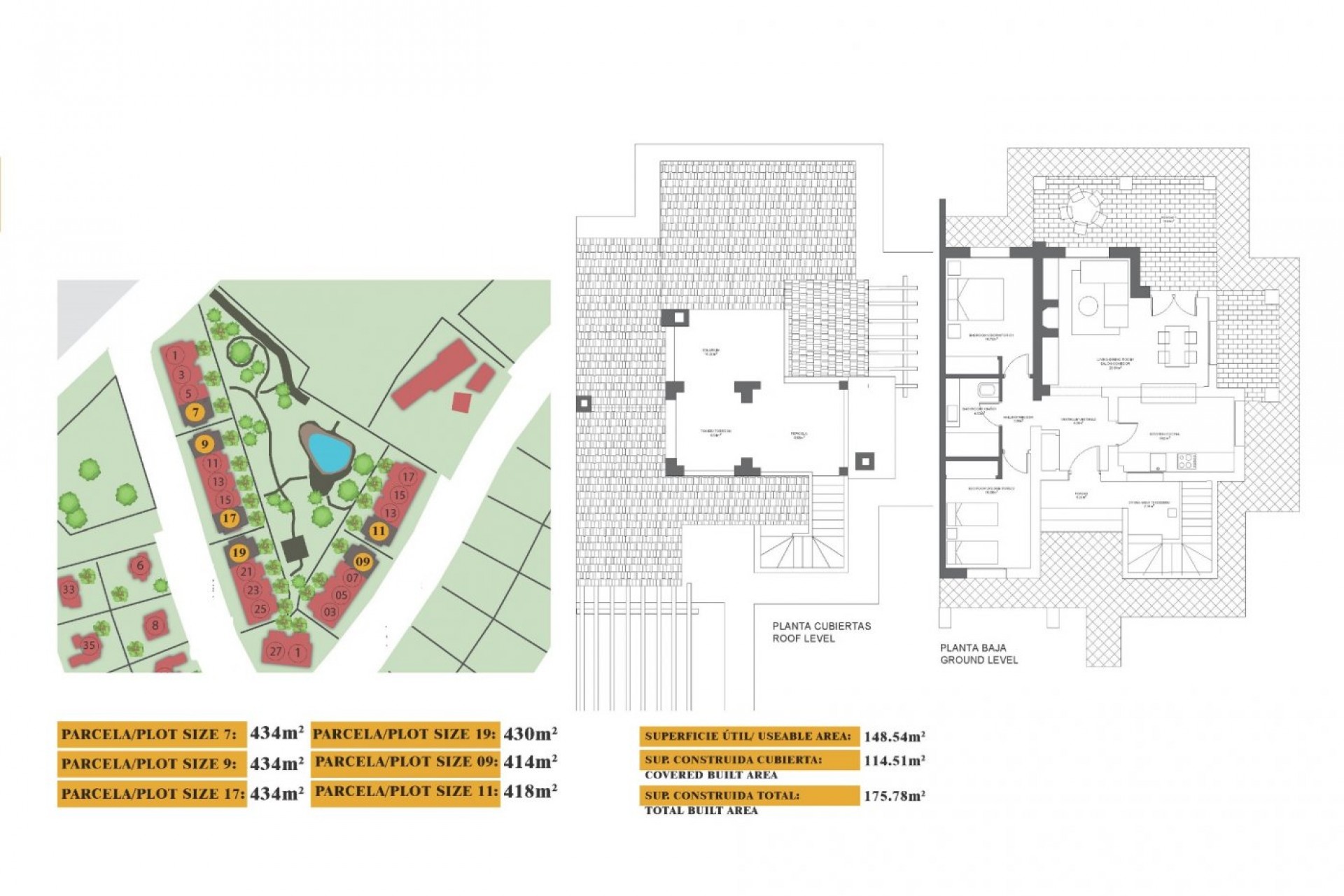
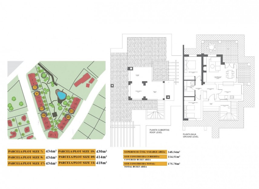
  • Construit 175m2
  • Intrigue 430m2
  • Chambres 2
  • Salles de bain 1
·    Utile: 148m2
·    Distance à la plage: 7500 Mts.
·    Storage / Trastero
·    Clé prête
·    Fermé
·    Terrasse : 45 m².
·    Nombre de places de stationnement : 1
·    Climatisation : Pré-installée
·    Jardin
·    Près du Golf / Propriété du Golf Resort
·    Chambres doubles : 2
·    Place de parking
·    Emplacement : côtier, rural, urbanisation
·    Plage : 7500 mètres
·    Espace de construction utilisable : 148 m².

La description

Emplacement

Faire une enquête

Responsable du traitement : Costa Blanca Flamenca SL, Finalité du traitement : Gestion et contrôle des services offerts via le site Web de services immobiliers, Envoi d'informations via des newsletters et autres, Base légale : Consentement, Destinataires : Les données ne seront pas transférées, sauf pour l'élaboration de la comptabilité, Droits des personnes concernées : Accéder, rectifier et supprimer les données, demander la portabilité des mêmes, s'opposer au traitement et demander la limitation de celui-ci, Origine des données : La personne concernée elle-même, Informations supplémentaires : Vous pouvez consulter les informations supplémentaires et détaillées sur la protection des données ici.

Espagne sage

Perdez-vous en Espagne avec notre guide routier.

Votre vie de rêve en Espagne commence avec notre guide pratique ! En 4 étapes, nous vous guiderons sous le soleil espagnol.

Télécharger maintenant
WhatsApp
search