Obra nueva » Villa » Fuente Álamo » L

Villa · Obra nueva Las Palas · Fuente Álamo · Murcia · Costa Calida - Inland

Villa · Obra nueva Las Palas · Fuente Álamo · Murcia · Costa Calida - Inland

PAREADO LLAVE EN MANO EN FUENTE ALAMO, MURCIA

Características

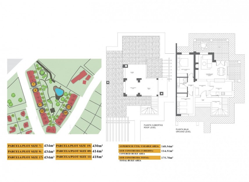
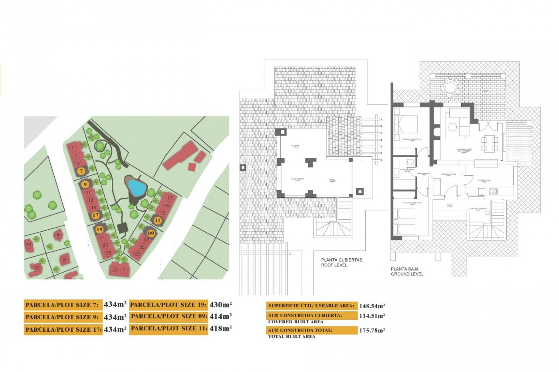
  • Construidos 175m2
  • Parcela 430m2
  • Habitaciones 2
  • Baños 1
·    Útiles: 148m2
·    Distancia a la playa: 7500 Mts.
·    Storage / Trastero
·    Llave lista
·    Cerrado
·    Terraza: 45 M².
·    Número de plazas de aparcamiento: 1
·    Aire Acondicionado: Preinstalado
·    Jardín
·    Propiedad cerca de golf/resort de golf
·    Habitaciones Dobles: 2
·    Plaza de aparcamiento
·    Ubicación: Costera, Rural, Urbanización
·    Playa: 7500 Metros
·    Espacio Construido Útil: 148 Msq.

Descripción

Localización

Realizar una consulta

Responsable del tratamiento: Costa Blanca Flamenca SL, Finalidad del tratamiento: Gestión y control de los servicios ofrecidos a través de la página Web de Servicios inmobiliarios, Envío de información a traves de newsletter y otros, Legitimación: Por consentimiento, Destinatarios: No se cederan los datos, salvo para elaborar contabilidad, Derechos de las personas interesadas: Acceder, rectificar y suprimir los datos, solicitar la portabilidad de los mismos, oponerse altratamiento y solicitar la limitación de éste, Procedencia de los datos: El Propio interesado, Información Adicional: Puede consultarse la información adicional y detallada sobre protección de datos Aquí.

España sabia

Piérdete por España con nuestra guía de carreteras.

¡La vida de tus sueños en España comienza con nuestra práctica guía! En 4 pasos, te ayudaremos a empezar bajo el sol español.

Descargar ahora
WhatsApp
search