Allereerst bedankt dat je contact met ons hebt opgenomen.
We hebben uw verzoek met betrekking tot de eigenschap referentie ontvangen:GE2-39870. Een van onze agenten neemt zo snel mogelijk contact met u op.
Email info@gold-estates.be
Kantoor België: Moeistraat 20G, 9830 St-Martens-Latem
Kantoor Spanje: Av. Marina Baixa 11, 03570 La Villa Joyosa, Alicante
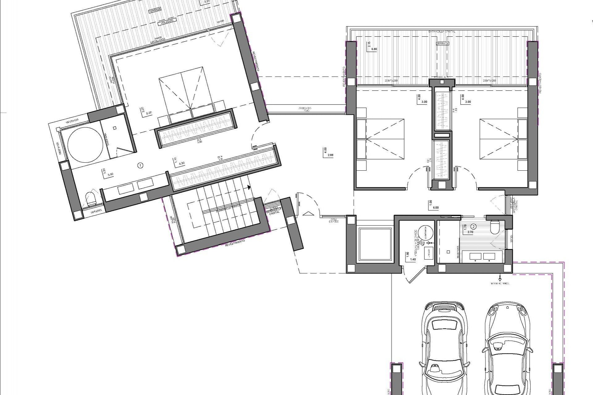
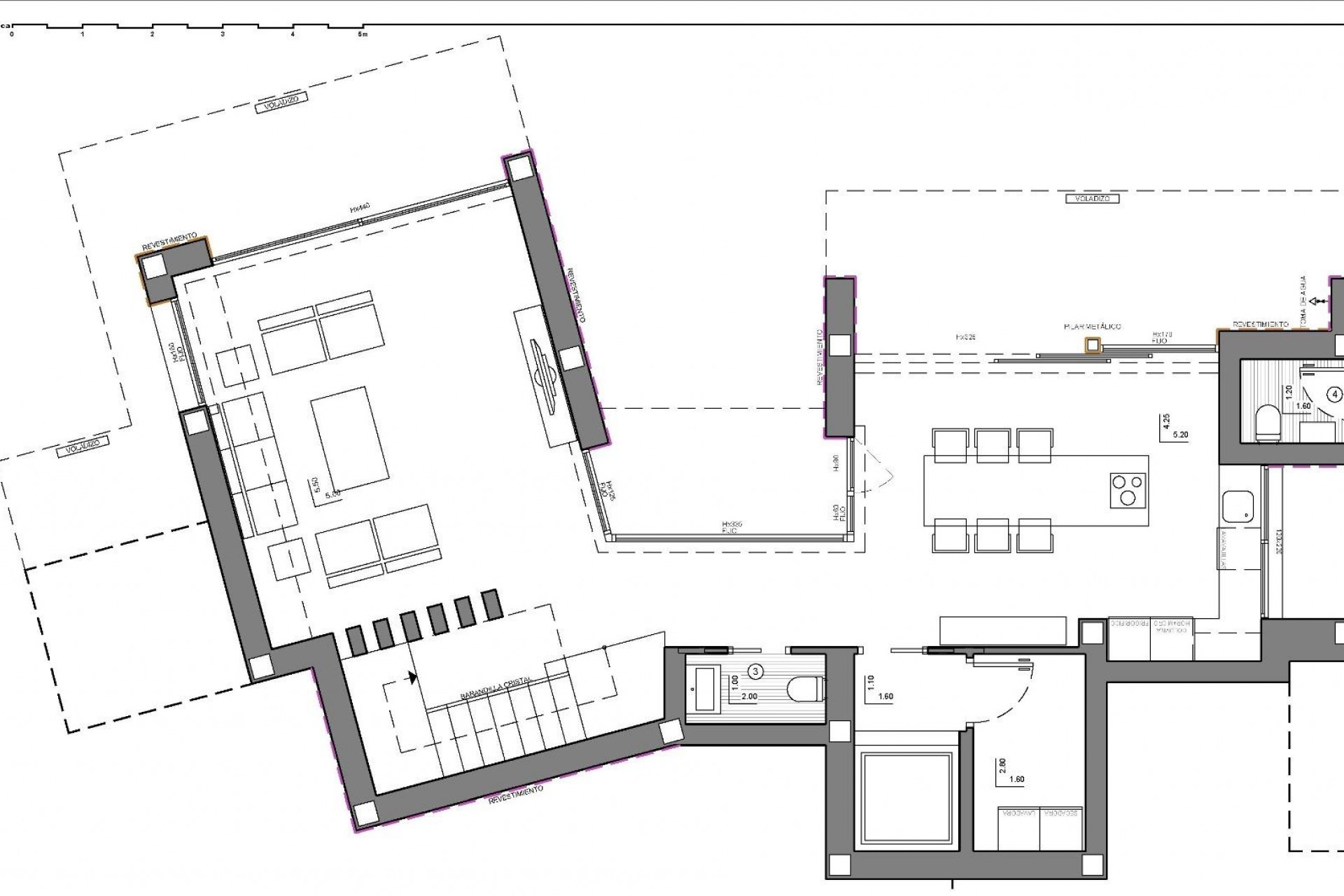
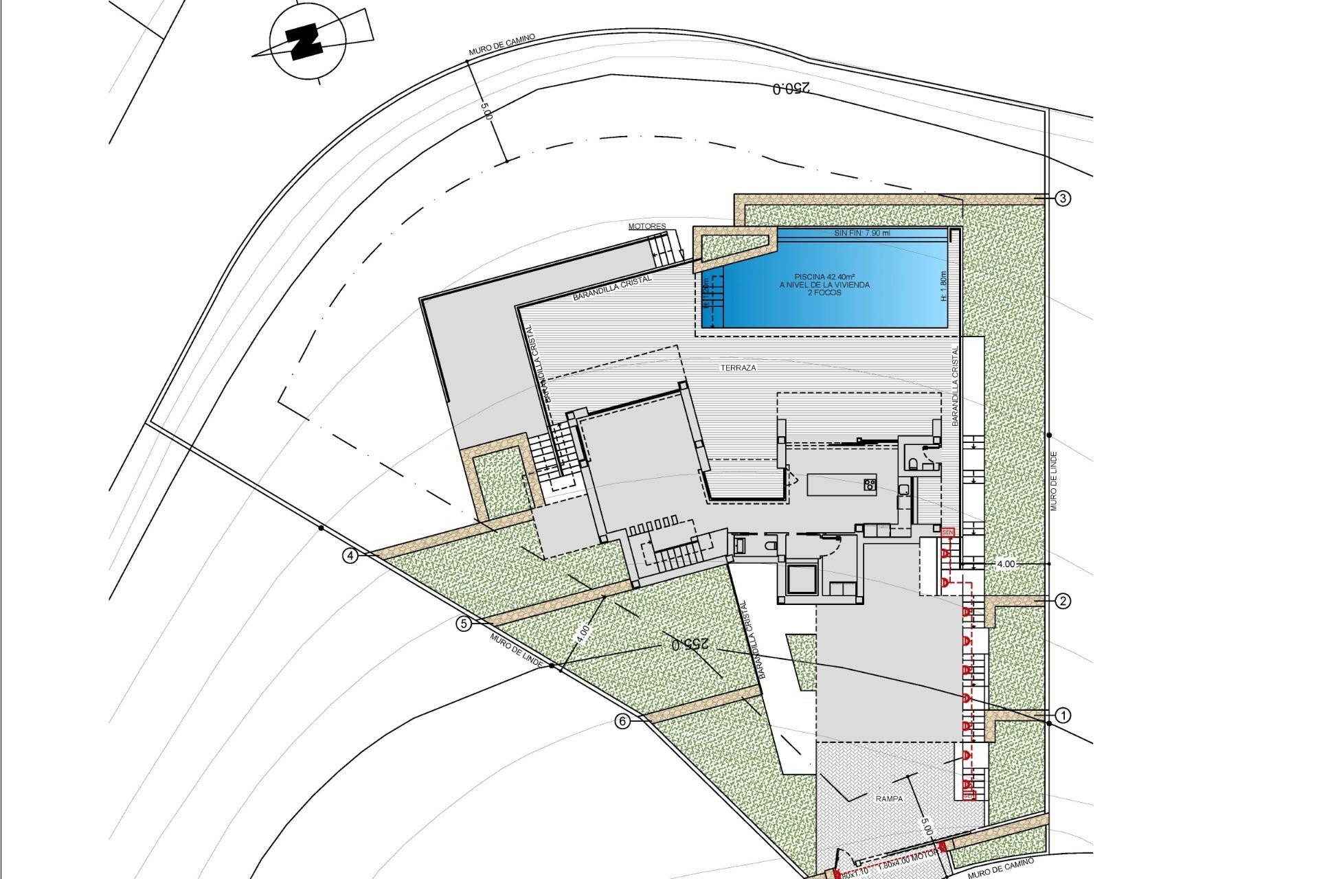
NIEUWBOUW LUXE VILLA IN CUMBRE DEL SOL In het hart van de urbanisatie Cumbre del Sol ligt deze luxe villa met privézwembad. Het New Build moderne villaontwerp combineert op een elegante en functionele manier moderne en mediterrane architectuur. Op de gevel, die wordt gekenmerkt door grote geometrische vormen op basis van diagonale lijnen, domineert de kleur wit en het gebruik van natuursteen zorgt ervoor dat het opgaat in de omgeving. De enorme tuin in mediterrane stijl, bekroond met een zwembad met oneindig effect dat opgaat in het blauw van de zee, in combinatie met het milde klimaat van de Costa Blanca Noord, nodigt je uit om bijna het hele jaar door te genieten van lange dagen in de frisse buitenlucht. Dankzij de ligging kun je genieten van een rustige en comfortabele omgeving. De villa is verdeeld over 3 verdiepingen. Je bereikt de villa via de bovenste verdieping, met een overdekte parkeerplaats voor twee auto's en een lift die het hele huis met elkaar verbindt. Het "nachtgedeelte", bestaande uit twee slaapkamers, een suite met badkamer, inloopkast en een privéterras en een gedeelde badkamer bevinden zich op deze verdieping. Alle slaapkamers hebben toegang tot een terras vanwaar je kunt genieten van een van de beste uitzichten op zee aan de Costa Blanca. Wakker worden terwijl je de zon ziet opkomen aan de horizon van de Middellandse Zee is een van de vele luxes die deze villa je te bieden heeft. Op de benedenverdieping vinden we de woonkamer, waar de grote open ruimtes en het natuurlijke licht de belangrijkste attracties zijn, en waar de grens tussen binnen en buiten samenvloeit dankzij de grote glazen wanden met panelen die toegang bieden tot de tuin en het zwembad. De keuken is uitgerust met moderne elektrische apparatuur van topmerken, heeft een centraal eiland en een ruim bankgedeelte dat je veel opbergruimte biedt. De buitenruimte heeft een overdekt gedeelte waar je de beste sociale evenementen kunt houden terwijl je beschermd bent tegen de zon. Het souterrain van deze villa maakt het mogelijk om er 4 slaapkamers van te maken, of om deze ruimte naar eigen voorkeur in te richten (fitnessruimte, kantoorruimte, speelkamer...). De villa heeft vloerverwarming, evenals warm/koud airconditioning, domoticasysteem, ECODAN... De residentie heeft een eigen supermarkt, bars en restaurants, sportruimtes en zelfs een glasvezeldienst, waardoor Cumbre del Sol een ideale plek is om vanuit huis te werken. Al deze kenmerken maken Villa tot de perfecte optie om met vrienden en familie van te genieten gedurende langere perioden of zelfs als hoofdverblijf.
Deze informatie is hier onderhevig aan fouten en maakt geen deel uit van een contract. De aanbieding kan zonder kennisgeving worden gewijzigd of ingetrokken. Prijzen zijn exclusief aankoopkosten.
Jouw droomleven in Spanje begint met onze handige gids! In 4 stappen maken we jou wegwijs onder de Spaanse zon.
E-Mail info@gold-estates.be
Kantoor België: Moeistraat 20G, 9830 St-Martens-Latem
Kantoor Spanje: Av. Marina Baixa 11, 03570 La Villa Joyosa, Alicante
Vind uw droomhuis door uw panden te bewaren en meldingen te ontvangen over nieuwe beschikbare panden.
Nieuwe gebruiker registrerenAllereerst bedankt dat je contact met ons hebt opgenomen.
We hebben uw verzoek met betrekking tot de eigenschap referentie ontvangen:GE2-39870. Een van onze agenten neemt zo snel mogelijk contact met u op.
Allereerst bedankt dat je contact met ons hebt opgenomen.
We hebben een aanvraag voor een rapport ontvangen als u de prijs van het onroerend goed met de referentie verlaagt: GE2-39870
Bekijk in de tussentijd eens een selectie van vergelijkbare woningen die voor u van belang kunnen zijn: