Allereerst bedankt dat je contact met ons hebt opgenomen.
We hebben uw verzoek met betrekking tot de eigenschap referentie ontvangen:GE-92333. Een van onze agenten neemt zo snel mogelijk contact met u op.
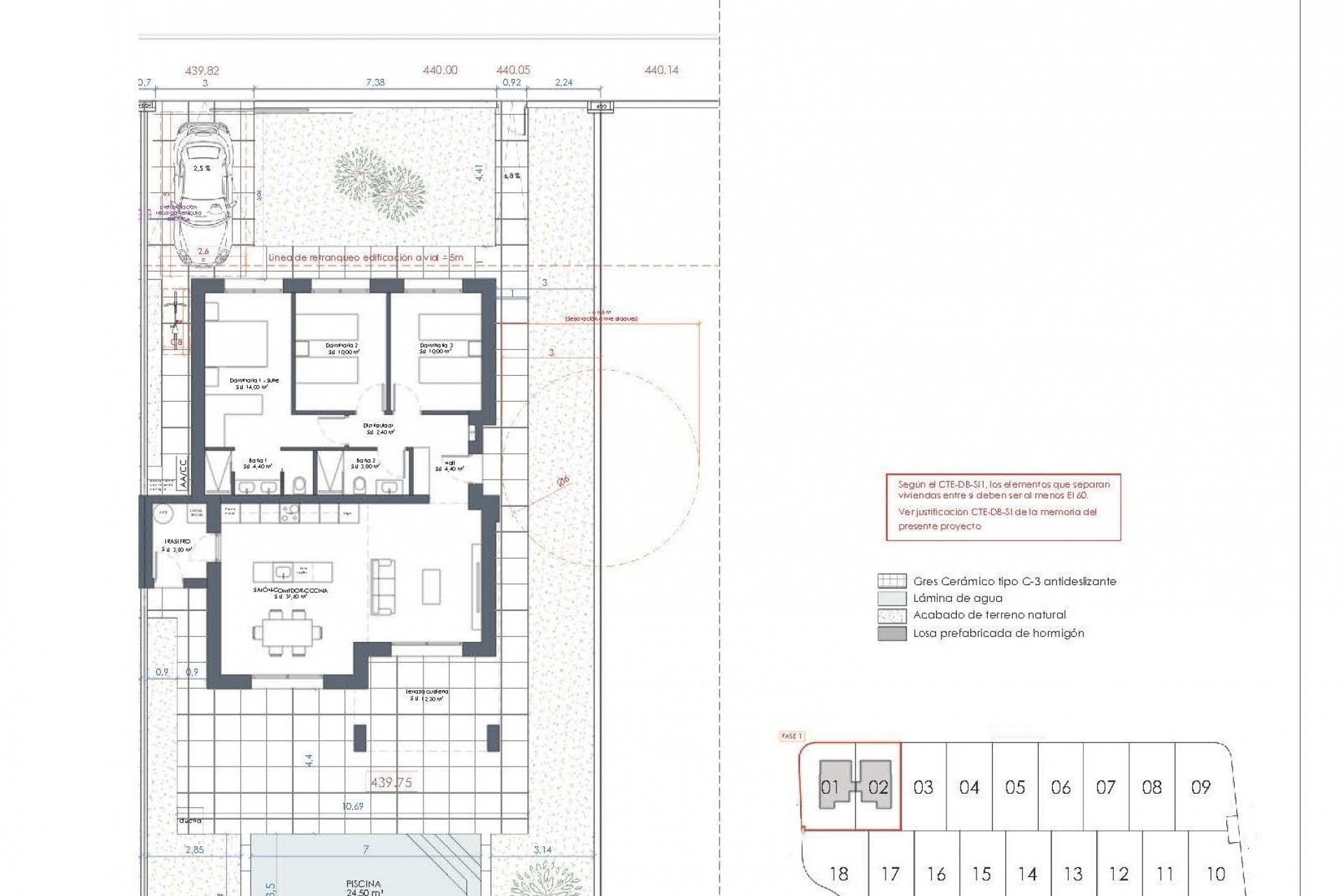
Moderne villa's in La Romana, Alicante Exclusieve nieuwbouwwoningen in een charmant Spaans dorp Deze moderne nieuwbouwwoningen in La Romana zijn ontworpen voor mensen die op zoek zijn naar rust, comfort en de authentieke Spaanse levensstijl. De woningen liggen op percelen van 370 m² in een woonwijk aan de rand van het dorp, op slechts een korte wandeling van het centrum, waar u kunt genieten van traditionele restaurants, winkels en alle dagelijkse voorzieningen. La Romana wordt omgeven door wijngaarden, amandelboomgaarden en berglandschappen en biedt een unieke landelijke omgeving op slechts 30 minuten van de kust. Ruim ontwerp met modern comfort Elke villa heeft een oppervlakte van 127 m², verdeeld over 3 slaapkamers en 2 badkamers, waaronder een master suite met eigen badkamer. De open woon- en eetkamer sluit naadloos aan op de ingerichte keuken en biedt directe toegang tot het terras en het privézwembad. Extra voorzieningen zijn een berging/wasruimte en een eigen parkeerplaats op het perceel. Voor wie extra buitenruimte wenst, is er de mogelijkheid om tegen meerprijs een solarium op het dak toe te voegen. Premium voorzieningen inbegrepen Deze villa's zijn gebouwd met hoogwaardige afwerkingen en zijn volledig uitgerust met: Privézwembad van 6 x 3,5 m Airconditioning met warmtepomp (installatie en unit inbegrepen) Moderne keuken met witte kasten en granieten werkbladen LED-verlichting in het hele huis en op de veranda Dubbele beglazing, witte binnendeuren en inbouwkasten De oplevering staat gepland 14 maanden na reservering, zodat u verzekerd bent van een gloednieuwe, gepersonaliseerde woning. Ideale locatie op het platteland van Alicante La Romana is een traditioneel Spaans dorp in het binnenland van Alicante, bekend om zijn gastvrije gemeenschap en natuurlijke omgeving. De locatie biedt de perfecte balans tussen rust en bereikbaarheid: Aspe – 8 km Elche – 18 km Luchthaven Alicante – 35 km Stranden van de Costa Blanca – 30 km Golfbanen (Font del Llop & Alenda) – 20 km Alicante stad – 32 km Uw mediterrane levensstijl wacht op u Als u op zoek bent naar een rustige omgeving, omringd door bergen, wijngaarden en charmante Spaanse stadjes, maar toch dicht bij de Middellandse Zeekust, dan zijn deze villa's in La Romana de perfecte keuze. Neem vandaag nog contact met ons op voor meer informatie en verzeker u van uw nieuwe woning in Alicante.