Allereerst bedankt dat je contact met ons hebt opgenomen.
We hebben uw verzoek met betrekking tot de eigenschap referentie ontvangen:MI-97494. Een van onze agenten neemt zo snel mogelijk contact met u op.
Email info@gold-estates.be
Kantoor België: Moeistraat 20G, 9830 St-Martens-Latem
Kantoor Spanje: Av. Marina Baixa 11, 03570 La Villa Joyosa, Alicante
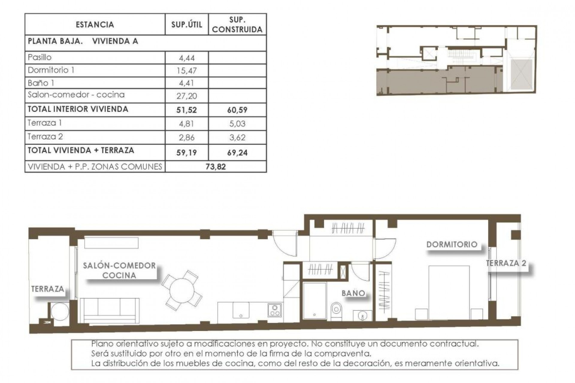
I centrala Torrevieja, bara 150 meter från de naturliga poolerna och strandpromenaden, samt 500 meter från Playa del Cura, presenteras denna exklusiva nybyggnation av lägenheter. Ett privilegierat läge som gör det möjligt att njuta av havet, service och den medelhavslivsstil året runt, utan behov av fordon. Byggnaden är belägen i en konsoliderad urban miljö, omgiven av stormarknader, butiker, restauranger, grönområden och nöjesplatser, och erbjuder en perfekt kombination av stadsliv och närhet till havet. Närheten till strandpromenaden och de främsta stränderna gör denna utveckling till ett idealiskt alternativ både för att bo året runt och som andra bostad eller investering. Utvecklingen erbjuder moderna och välplanerade lägenheter med 1 och 2 sovrum, och har 1 eller 2 badrum, designade med en modern och funktionell stil. Bostäderna har öppna planlösningar, integrerade kök i amerikansk stil och terrasser som ger naturligt ljus och rymlighet. Bland typologierna utmärker sig 2 exklusiva takvåningar, som har privat solarium, grillplats och privat pool, vilket ger en hög nivå av komfort och avskildhet. Bostäderna inkluderar ett noggrant urval av kvaliteter inriktade på komfort och effektivitet: Utrustade kök med vitvarorFullständiga badrum med möbler, duschskärmar och golvvärmeInkluderad belysningFörinstallation av luftkonditionering via kanalerModern design och lättskötta material Byggnaden har attraktiva gemensamma områden, utformade för avkoppling och njutning: Gemensam pool på bottenvåningenSauna, perfekt för avkopplingGemensamt solarium på taket, idealiskt för att sola och njuta av det medelhavska klimatet Torrevieja är känd för sitt milda medelhavsklimat, med en genomsnittlig årlig temperatur på 20 ºC, vilket gör det till en idealisk destination året runt. Endast 4 km bort ligger naturparken Las Lagunas de La Mata y Torrevieja, känd för sina rosa och gröna laguner, vandringsleder och stora biologiska mångfald, vilket erbjuder en oöverträffad hälsosam och naturlig miljö. Denna utveckling representerar ett utmärkt tillfälle att förvärva en modern bostad i centrala Torrevieja, med gemensamma områden, närhet till havet och höga kvaliteter. Perfekt som permanent bostad, semesterbostad eller fastighetsinvestering med stor uthyrningspotential.
Deze informatie is hier onderhevig aan fouten en maakt geen deel uit van een contract. De aanbieding kan zonder kennisgeving worden gewijzigd of ingetrokken. Prijzen zijn exclusief aankoopkosten.
Jouw droomleven in Spanje begint met onze handige gids! In 4 stappen maken we jou wegwijs onder de Spaanse zon.
E-Mail info@gold-estates.be
Kantoor België: Moeistraat 20G, 9830 St-Martens-Latem
Kantoor Spanje: Av. Marina Baixa 11, 03570 La Villa Joyosa, Alicante
Vind uw droomhuis door uw panden te bewaren en meldingen te ontvangen over nieuwe beschikbare panden.
Nieuwe gebruiker registrerenAllereerst bedankt dat je contact met ons hebt opgenomen.
We hebben uw verzoek met betrekking tot de eigenschap referentie ontvangen:MI-97494. Een van onze agenten neemt zo snel mogelijk contact met u op.
Allereerst bedankt dat je contact met ons hebt opgenomen.
We hebben een aanvraag voor een rapport ontvangen als u de prijs van het onroerend goed met de referentie verlaagt: MI-97494
Bekijk in de tussentijd eens een selectie van vergelijkbare woningen die voor u van belang kunnen zijn: