Allereerst bedankt dat je contact met ons hebt opgenomen.
We hebben uw verzoek met betrekking tot de eigenschap referentie ontvangen:GE-52372. Een van onze agenten neemt zo snel mogelijk contact met u op.
Email info@gold-estates.be
Kantoor België: Moeistraat 20G, 9830 St-Martens-Latem
Kantoor Spanje: Av. Marina Baixa 11, 03570 La Villa Joyosa, Alicante
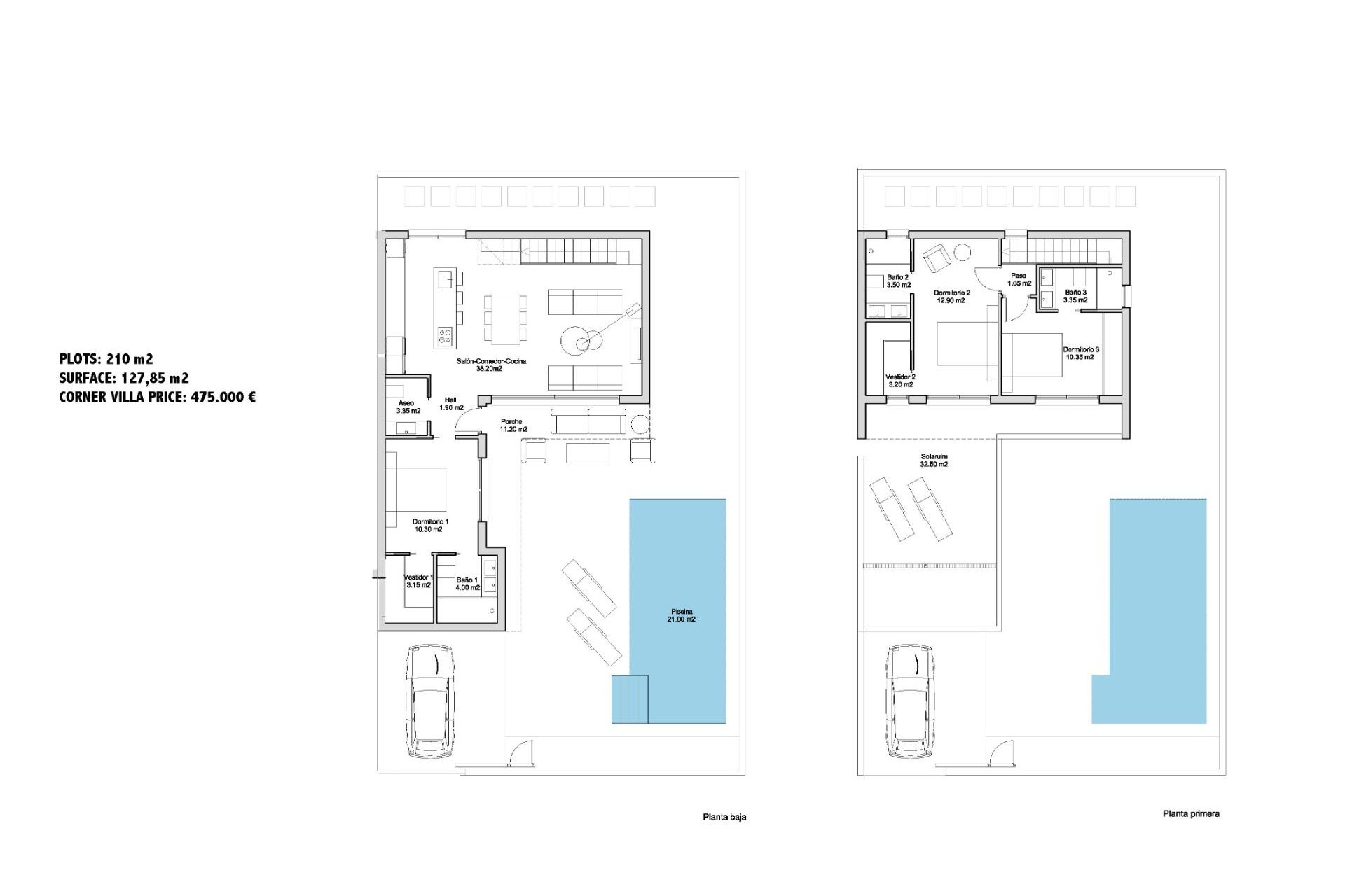
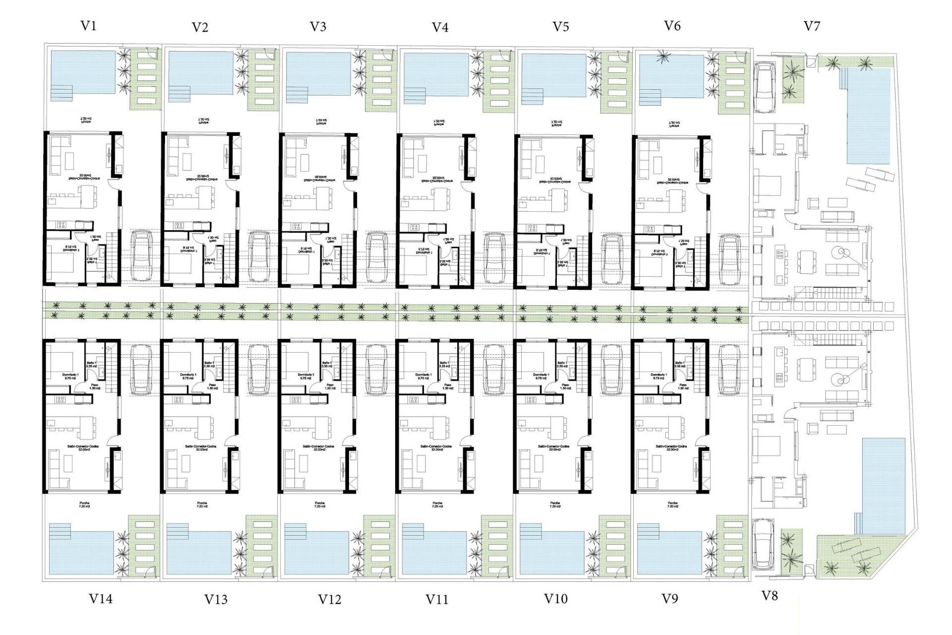
NIEUWBOUW VILLA'S IN SAN JAVIER Nieuwbouwproject van vrijstaande villa's in San Javier. De nieuwbouwvilla's zijn verdeeld over twee verdiepingen plus het ruime dakterras met prachtig uitzicht op de omgeving. Op de begane grond is er een lichte woonkamer met open keuken en toegang tot het terras, een tweepersoons slaapkamer met inbouwkast en een badkamer. Op de eerste verdieping zijn er 2 ruime slaapkamers, een met inbouwkast en de andere met kleedkamer en badkamer en suite. Privétuin met het zwembad en parkeerplaats. San Javier ligt dicht bij alle voorzieningen met gemakkelijke toegang tot het strand, watersporten, winkels en het transportnetwerk. Hier kun je genieten van alle faciliteiten die San Javier te bieden heeft, zoals de plaatselijke winkels, bars en restaurants, maar ook van de nabijheid van winkelcentra, het vliegveld van Murcia en alle mooie plekjes langs de Mar Menor. Het vliegveld van Corvera/Murcia ligt op 30 minuten rijden en dat van Alicante op 45 minuten.
Deze informatie is hier onderhevig aan fouten en maakt geen deel uit van een contract. De aanbieding kan zonder kennisgeving worden gewijzigd of ingetrokken. Prijzen zijn exclusief aankoopkosten.
Jouw droomleven in Spanje begint met onze handige gids! In 4 stappen maken we jou wegwijs onder de Spaanse zon.
E-Mail info@gold-estates.be
Kantoor België: Moeistraat 20G, 9830 St-Martens-Latem
Kantoor Spanje: Av. Marina Baixa 11, 03570 La Villa Joyosa, Alicante
Vind uw droomhuis door uw panden te bewaren en meldingen te ontvangen over nieuwe beschikbare panden.
Nieuwe gebruiker registrerenAllereerst bedankt dat je contact met ons hebt opgenomen.
We hebben uw verzoek met betrekking tot de eigenschap referentie ontvangen:GE-52372. Een van onze agenten neemt zo snel mogelijk contact met u op.
Allereerst bedankt dat je contact met ons hebt opgenomen.
We hebben een aanvraag voor een rapport ontvangen als u de prijs van het onroerend goed met de referentie verlaagt: GE-52372
Bekijk in de tussentijd eens een selectie van vergelijkbare woningen die voor u van belang kunnen zijn: