Allereerst bedankt dat je contact met ons hebt opgenomen.
We hebben uw verzoek met betrekking tot de eigenschap referentie ontvangen:GE2-36400. Een van onze agenten neemt zo snel mogelijk contact met u op.
Email info@gold-estates.be
Kantoor België: Moeistraat 20G, 9830 St-Martens-Latem
Kantoor Spanje: Av. Marina Baixa 11, 03570 La Villa Joyosa, Alicante
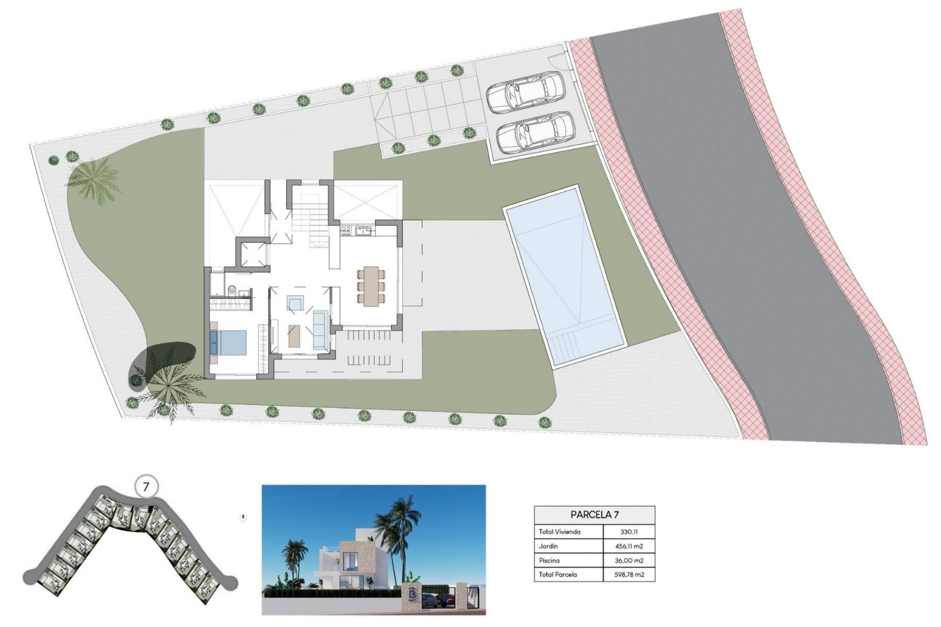
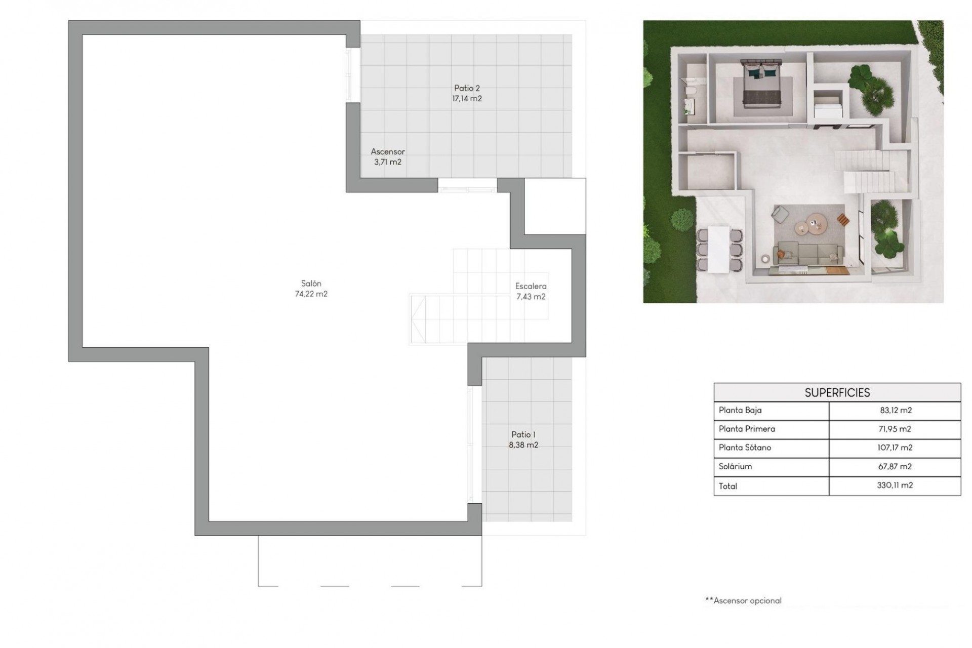
NYBYGGDA VILLOR I FINESTRAT Nybyggda villor belägna i Balcon de Finestrat. Nybyggnation av 15 helt oberoende lyxvillor i en unik miljö nära de bästa stränderna i Medelhavet och alla tjänster. Villor byggda över 2 våningar och har 3 sovrum, 3 badrum, kök med öppen planlösning med vardagsrum, inbyggda garderober, privat solarium, trädgård med pool och parkeringsplats för 2 bilar. Ett alternativ källare och hiss mot en extra kostnad. Villor belägna nära 2 golfbanor, temaparker, ett stort köpcentrum och några minuter från stränderna i Benidorm. Finestrat ligger i Marina Baixa-regionen på Costa Blanca, nära grannstaden Benidorm och cirka 40 kilometer från staden Alicante och den internationella flygplatsen. Benidorm ligger bara fem minuters bilresa från fastigheterna och erbjuder alla tjänster du behöver, inklusive butiker, barer, restauranger, stormarknader, banker, apotek och flera privata internationella skolor. Nära till stränderna Levante, Poniente och Cala de Finestrat, med mer än 6 km längd som är bland de bästa i Europa som tilldelats av Europeiska unionen med blå flaggor. Alla fritidstjänster som temaparkerna Aqua Natura, Terra Mítica, Terra Natura, Aqualandia och Mundomar, Sierra Cortina och Villaitana Golfbanor, vandring och klättring i Puig Campana en ojämförlig naturmiljö eller njut av nautiska sporter.
Deze informatie is hier onderhevig aan fouten en maakt geen deel uit van een contract. De aanbieding kan zonder kennisgeving worden gewijzigd of ingetrokken. Prijzen zijn exclusief aankoopkosten.
Jouw droomleven in Spanje begint met onze handige gids! In 4 stappen maken we jou wegwijs onder de Spaanse zon.
E-Mail info@gold-estates.be
Kantoor België: Moeistraat 20G, 9830 St-Martens-Latem
Kantoor Spanje: Av. Marina Baixa 11, 03570 La Villa Joyosa, Alicante
Vind uw droomhuis door uw panden te bewaren en meldingen te ontvangen over nieuwe beschikbare panden.
Nieuwe gebruiker registrerenAllereerst bedankt dat je contact met ons hebt opgenomen.
We hebben uw verzoek met betrekking tot de eigenschap referentie ontvangen:GE2-36400. Een van onze agenten neemt zo snel mogelijk contact met u op.
Allereerst bedankt dat je contact met ons hebt opgenomen.
We hebben een aanvraag voor een rapport ontvangen als u de prijs van het onroerend goed met de referentie verlaagt: GE2-36400
Bekijk in de tussentijd eens een selectie van vergelijkbare woningen die voor u van belang kunnen zijn: