Allereerst bedankt dat je contact met ons hebt opgenomen.
We hebben uw verzoek met betrekking tot de eigenschap referentie ontvangen:GE2-50846. Een van onze agenten neemt zo snel mogelijk contact met u op.
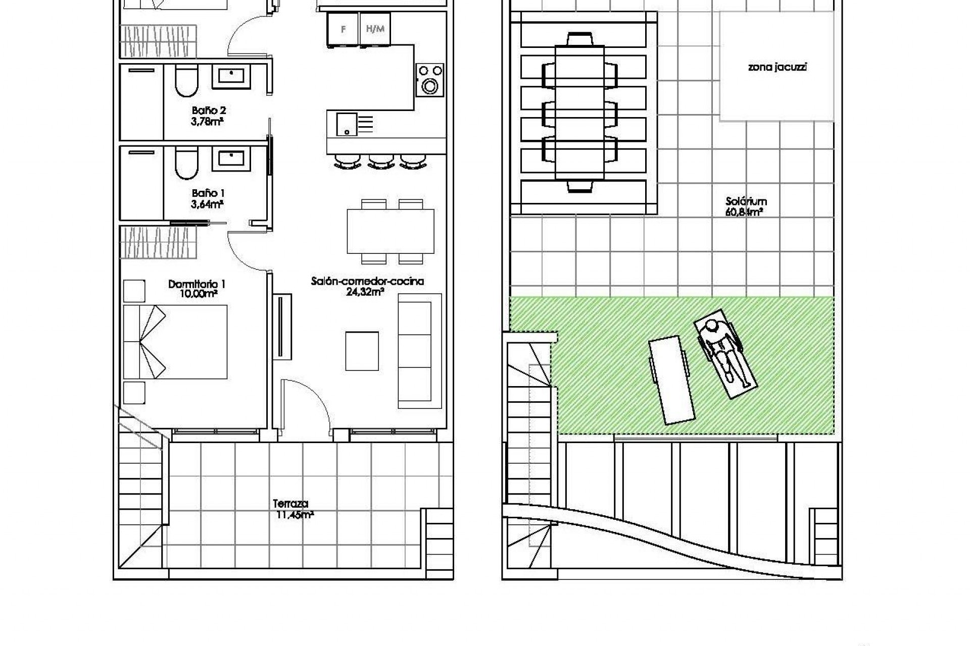
Exklusiva nybyggda bungalows i Pilar de la Horadada - unik stil och privilegierat läge En unik stil som definierar ditt nya hem Detta nybygge av bungalows med 2 och 3 sovrum i Pilar de la Horadada utmärker sig för sin moderna design och böljande struktur, som ger varje hem en unik personlighet. Du kommer att kunna välja mellan: Bottenvåningar med trädgård på framsidan och uteplats på baksidan. Översta våningarna med privat solarium. Bostadskomplexet har en gemensam pool och rymliga gemensamma utrymmen utformade för avkoppling och njutning för hela familjen. Dessutom erbjuder projektet ett utomhusgym, en gemensam jacuzzi och en cykelparkering samt en parkeringsplats som tilldelas varje fastighet med möjlighet att ladda elfordon, utformad för att erbjuda dig maximal komfort och livskvalitet. Ljusa och högkvalitativa interiörer Varje hem har utformats för att erbjuda en upplevelse av komfort och funktionalitet. Öppna planlösningar maximerar känslan av rymd och ljus, medan neutrala toner och träfinish skapar en elegant och välkomnande atmosfär. Rymliga och ljusa sovrum, där det stora sovrummet har tillgång till en privat terrass. Kök med öppet koncept, integrerat i vardagsrummet för bekvämlighetens skull. Moderna badrum med material av högsta kvalitet. Pilar de la Horadada - Livskvalitet på Costa Blanca Pilar de la Horadada ligger i provinsen Alicante och är en kuststad som kombinerar tradition med en avslappnad atmosfär. Den är känd för sina vackra stränder, till exempel Playa de las Higuericas, med gyllene sand och kristallklart medelhavsvatten. Förutom kusten har staden en livlig huvudgata som kantas av butiker, stormarknader, restauranger och pittoreska torg. Den utmärkta infrastrukturen omfattar cykelvägar, vandringsleder och ett brett utbud av sportaktiviteter. Närhet till viktiga platser av intresse Detta bostadsområde erbjuder bekväm tillgång till de viktigaste destinationerna i området: Torre de la Horadada Beach - 3 km (5 min bilfärd). Lo Romero Golf Course - 5 km (10 min bilfärd). La Zenia Boulevard Shopping Centre - 15 km (15 min bilfärd). Corvera Flygplats (Murcia) - 40 km (40 min bilfärd). Alicante flygplats - 55 km (55 min bilfärd). Säkra din Costa Blanca-fastighet idag Missa inte möjligheten att köpa en helt ny fastighet på ett exceptionellt läge. Kontakta oss idag för mer information och för att ordna en visning.