Allereerst bedankt dat je contact met ons hebt opgenomen.
We hebben uw verzoek met betrekking tot de eigenschap referentie ontvangen:GE2-27496. Een van onze agenten neemt zo snel mogelijk contact met u op.
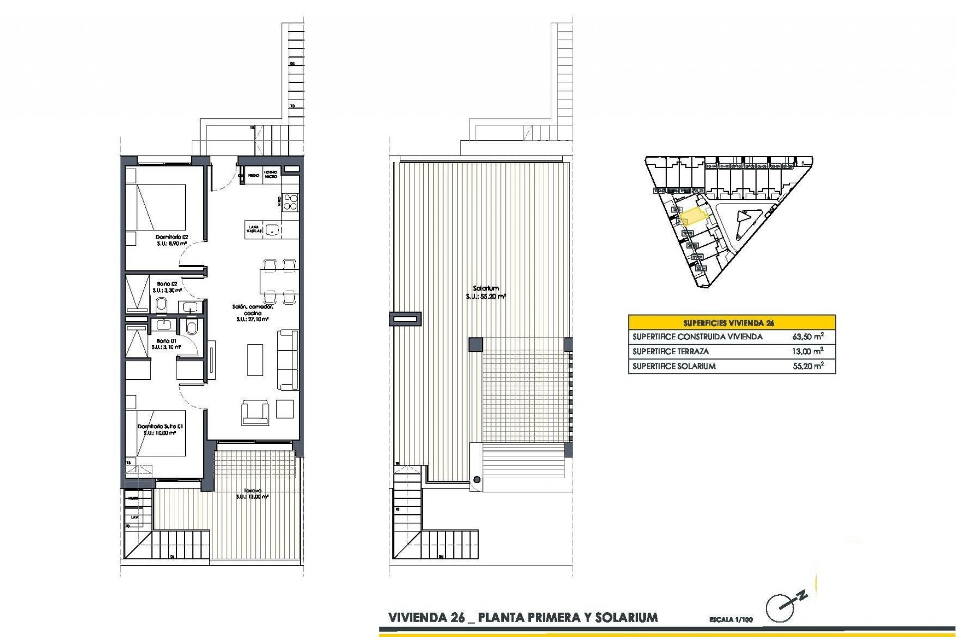
Nybyggt bostadskomplex i San Fulgencio Moderna lägenheter med exceptionella funktioner Upptäck detta nya bostadsområde i San Fulgencio, som erbjuder lägenheter med 2 och 3 sovrum utformade för komfort, stil och bekvämlighet. Komplexet har följande egenskaper: Bottenvåningslägenheter med privata trädgårdar Takvåningar med privata solarier, pergolor, eluttag och vattenposter Till varje fastighet hör en privat parkeringsplats och i anläggningen finns en gemensam pool i medelhavsstil med en 85 m² stor vattenspegel, omgiven av vackert anlagda trädgårdar. Högkvalitativa ytbehandlingar och modern design Dessa bostäder är byggda med förstklassiga material och moderna funktioner för att säkerställa energieffektivitet och en hög levnadsstandard: Elektriska persienner i sovrummen Dubbelglasade utvändiga snickerier med termisk brytningsteknik Fullt utrustade badrum med underskåp, speglar och duschväggar LED-belysning i hela fastigheten Förinstallerad kanaliserad luftkonditionering för klimatkontroll Utmärkt läge nära stränder, golf och bekvämligheter San Fulgencio är en charmig spansk stad med ett urval av restauranger, butiker och viktiga tjänster inom gångavstånd. Dess strategiska läge erbjuder snabb tillgång till några av de bästa attraktionerna på Costa Blanca: Alicante-Elche internationella flygplats - 30 km (30 min) La Marina Beach - 7 km (10 min) Guardamar del Segura - 10 km (12 min) La Marquesa Golf Course (Ciudad Quesada) - 6 km (8 min) Torrevieja centrum - 18 km (20 min) Köpcentra, restauranger och fritidsalternativ - inom en kort bilresa Det perfekta hemmet för kustliv Denna nya utveckling i San Fulgencio är perfekt för dem som letar efter ett modernt fritidshus, en investeringsfastighet eller en permanent bostad på Costa Blanca. Med sitt utmärkta läge nära stranden, golfbanor och viktiga tjänster erbjuder det en lugn men ändå väl ansluten livsstil. Missa inte chansen att äga ett helt nytt hem i San Fulgencio. Kontakta oss idag för mer information eller för att boka ett besök!