Zunächst einmal, vielen Dank für Ihre Kontaktaufnahme.
Wir haben Ihre Anfrage bezüglich des Eigentumsverweises erhalten:GE2-44743. Einer unserer Mitarbeiter wird sich so schnell wie möglich mit Ihnen in Verbindung setzen.
Email info@gold-estates.be
Büro in Belgien: Moeistraat 20G, 9830 St-Martens-Latem
Büro in Spanien: Av. Marina Baixa 11, 03570 La Villa Joyosa, Alicante
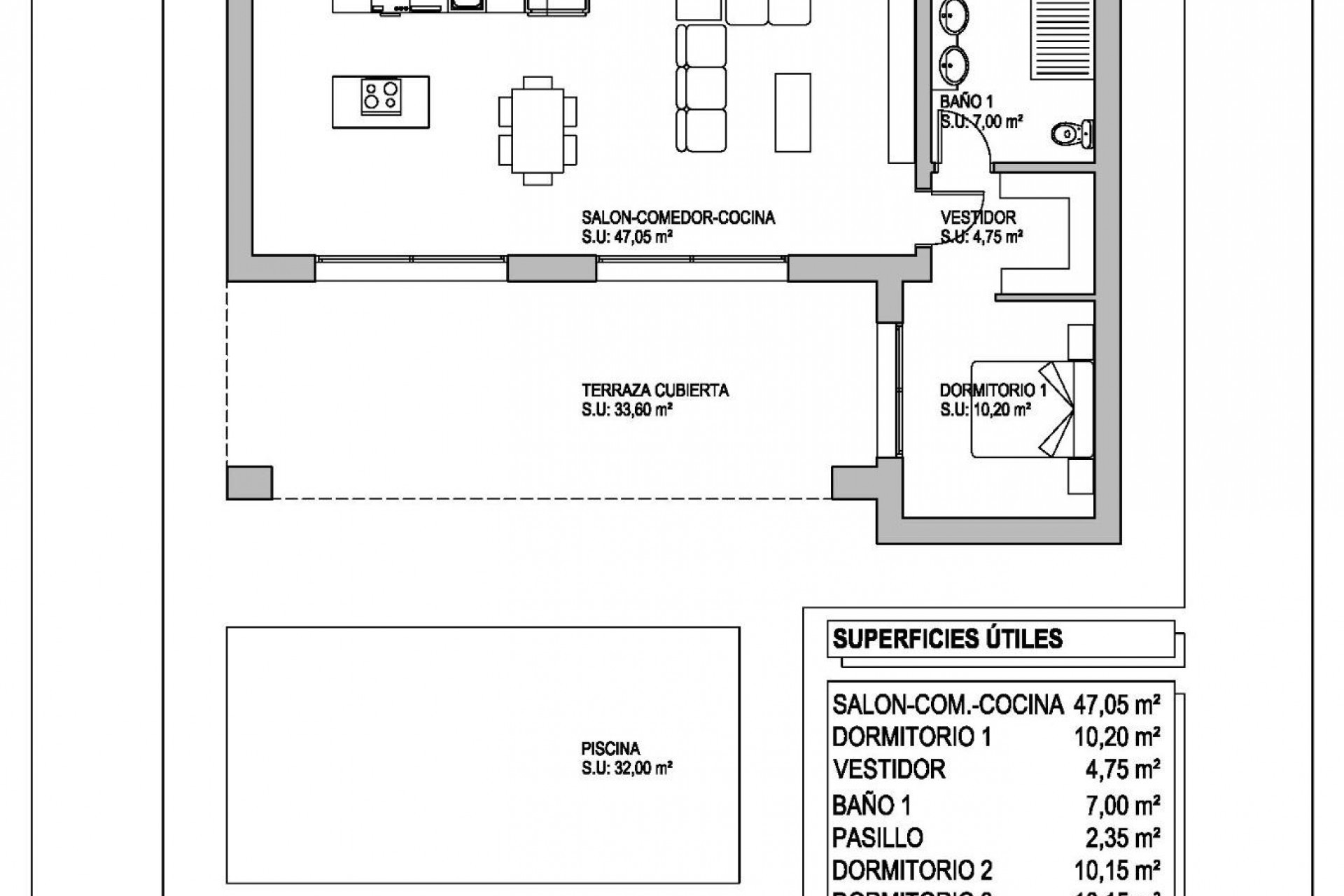
NEU GEBAUTE VILLEN IN PINOSO Neubau Unabhängige, moderne Villen, die auf ländlichen oder städtischen Grundstücken gebaut werden können, haben wir eine große Auswahl in der Gegend von Pinoso zur Verfügung: - 3 Schlafzimmer, 2 Bäder - Privates Schwimmbad - Vollständige Installation von Klimaanlagen - Voll ausgestattete Küche - Große Auswahl an Qualitätsmaterialien - Netzstrom und Wasser - 4 Sonnenkollektoren inklusive - AA-Energie-Label - 15.658 m² großes Grundstück in Pinoso - 3.000 m² eingezäuntes Grundstück für einfache Wartung - Motorisiertes Schiebetor Auf den rustikalen Grundstücken werden ca. 3.000 m2 des gesamten Grundstücks eingezäunt und die Häuser werden mit ca. 1.000 m2 Kies um das Haus herum geliefert. Das Haus verfügt über einen privaten Swimmingpool und photovoltaische Solarzellen für die Stromversorgung. Es stehen mehrere rustikale Grundstücke in verschiedenen Lagen zur Auswahl, jedes mit einem anderen Preis (in den in dieser Anzeige veröffentlichten Preisen wurde ein Grundstück mit einem Wert von 40.000 eur berücksichtigt, wenn der Käufer ein anderes Grundstück wählt, wird der Endpreis entsprechend neu berechnet). Die Lieferfrist beträgt 8 Monate ab Erteilung der Baugenehmigung. Das Grundstück wird im Rahmen einer Selbstvermarktungsregelung erworben: Der Käufer leistet Abschlagszahlungen auf den Preis, während der Bauträger die Arbeiten ausführt.NEU GEBAUTE VILLEN IN PINOSO Neubau Unabhängige, moderne Villen, die auf ländlichen oder städtischen Grundstücken gebaut werden können, haben wir eine große Auswahl in der Gegend von Pinoso zur Verfügung: - 3 Schlafzimmer, 2 Bäder - Privates Schwimmbad - Vollständige Installation von Klimaanlagen - Voll ausgestattete Küche - Große Auswahl an Qualitätsmaterialien - Netzstrom und Wasser - 4 Sonnenkollektoren inklusive - AA-Energie-Label - 15.658 m² großes Grundstück in Pinoso - 3.000 m² eingezäuntes Grundstück für einfache Wartung - Motorisiertes Schiebetor Auf den rustikalen Grundstücken werden ca. 3.000 m2 des gesamten Grundstücks eingezäunt und die Häuser werden mit ca. 1.000 m2 Kies um das Haus herum geliefert. Das Haus verfügt über einen privaten Swimmingpool und photovoltaische Solarzellen für die Stromversorgung. Es stehen mehrere rustikale Grundstücke in verschiedenen Lagen zur Auswahl, jedes mit einem anderen Preis (in den in dieser Anzeige veröffentlichten Preisen wurde ein Grundstück mit einem Wert von 40.000 eur berücksichtigt, wenn der Käufer ein anderes Grundstück wählt, wird der Endpreis entsprechend neu berechnet). Die Lieferfrist beträgt 8 Monate ab Erteilung der Baugenehmigung. Das Grundstück wird im Rahmen einer Selbstvermarktungsregelung erworben: Der Käufer leistet Abschlagszahlungen auf den Preis, während der Bauträger die Arbeiten ausführt.
Diese hier angegebenen Informationen unterliegen Fehlern und sind nicht Bestandteil eines Vertrages. Das Angebot kann ohne vorherige Ankündigung geändert oder zurückgezogen werden. Die Preise beinhalten keine Einkaufskosten.
Ihr Traumleben in Spanien beginnt mit unserem praktischen Reiseführer! In 4 Schritten ermöglichen wir Ihnen den Start unter der spanischen Sonne.
E-Mail info@gold-estates.be
Büro in Belgien: Moeistraat 20G, 9830 St-Martens-Latem
Büro in Spanien: Av. Marina Baixa 11, 03570 La Villa Joyosa, Alicante
© 2026 Gold Estates · Rechtlicher Hinweis · Privatsphäre · Cookies · BIV Legale Informatie · Web-Karte
Entwurf & CRM: Mediaelx
Finden Sie Ihr Traumhaus, indem Sie Ihre Immobilien speichern und Benachrichtigungen zu neuen verfügbaren Immobilien erhalten
Neuen Benutzer registrierenZunächst einmal, vielen Dank für Ihre Kontaktaufnahme.
Wir haben Ihre Anfrage bezüglich des Eigentumsverweises erhalten:GE2-44743. Einer unserer Mitarbeiter wird sich so schnell wie möglich mit Ihnen in Verbindung setzen.
Zunächst einmal, vielen Dank für Ihre Kontaktaufnahme.
Wir haben eine Anfrage für einen Bericht erhalten, wenn Sie den Preis der Immobilie mit der Referenz senken: GE2-44743
In der Zwischenzeit sehen Sie sich bitte diese Auswahl ähnlicher Objekte an, die für Sie von Interesse sein könnten: