Dziękujemy za kontakt z naszym biurem
We have received your request regarding the property reference: GE2-44743. One of our agents will contact you as soon as possible.
Email info@gold-estates.be
Biuro w Belgii: Moeistraat 20G, 9830 St-Martens-Latem
Biuro w Hiszpanii: Av. Marina Baixa 11, 03570 La Villa Joyosa, Alicante
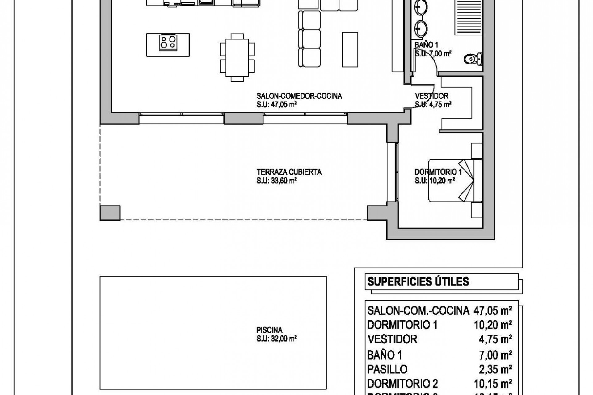
RYNEK PIERWOTNY WILLE W PINOSO Rynek Pierwotny niezależne nowoczesne wille, które można zbudować na działkach rustykalnych lub miejskich, mamy szeroki wybór dostępnych w okolicy Pinoso: - 3 sypialnie, 2 łazienki - Prywatny basen - Pełna instalacja klimatyzacji - W pełni wyposażona kuchnia - Duży wybór wysokiej jakości materiałów - Elektryczność i woda z sieci - 4 panele słoneczne w zestawie - Etykieta energetyczna AA - Działka o powierzchni 15.658 m² w Pinoso - Ogrodzona działka o powierzchni 3.000 m² dla łatwej konserwacji - Brama przesuwna z napędem Na działkach rustykalnych około 3.000 m2 całkowitej powierzchni działki zostanie ogrodzone, a domy zostaną dostarczone z około 1.000 m2 żwiru wokół domu. Dom posiada prywatny basen i fotowoltaiczne panele słoneczne do zasilania w energię elektryczną. Do wyboru jest kilka rustykalnych działek w różnych lokalizacjach, każda w innej cenie (w cenach opublikowanych w tym ogłoszeniu uwzględniono działkę o wartości 40.000 euro, jeśli kupujący wybierze inną działkę, ostateczna cena zostanie odpowiednio przeliczona). Okres dostawy wynosi 8 miesięcy od wydania pozwolenia na budowę. Działka jest nabywana w systemie autopromocji: kupujący dokonuje płatności na poczet ceny w miarę wykonywania prac przez wykonawcę.
Informacja podana tutaj jest orientacyjna i nie stanowi części żadnej umowy. Oferta może zostać zmieniona lub wycofana bez uprzedniego powiadomienia. Ceny nie obejmują kosztów zakupu
Twoje wymarzone życie w Hiszpanii zaczyna się od naszego podręcznego przewodnika! W 4 krokach pomożemy Ci rozpocząć pracę pod hiszpańskim słońcem.
E-Mail info@gold-estates.be
Biuro w Belgii: Moeistraat 20G, 9830 St-Martens-Latem
Biuro w Hiszpanii: Av. Marina Baixa 11, 03570 La Villa Joyosa, Alicante
© 2026 Gold Estates · Nota prawna · Prywatność · Cookies · BIV Legale Informatie · Mapa strony
Projekt & CRM: Mediaelx
Znajdź swój wymarzony dom, zapisując swoje nieruchomości i otrzymując powiadomienia o nowych dostępnych nieruchomościach
Zarejestruj nowego użytkownikaDziękujemy za kontakt z naszym biurem
We have received your request regarding the property reference: GE2-44743. One of our agents will contact you as soon as possible.
Dziękujemy za kontakt z naszym biurem
We have received your request regarding the property reference: %s. One of our agents will contact you as soon as possible.: GE2-44743
In the meantime, please have a look at this selection of similar properties, that might be of interest to you: