Allereerst bedankt dat je contact met ons hebt opgenomen.
We hebben uw verzoek met betrekking tot de eigenschap referentie ontvangen:GE2-44743. Een van onze agenten neemt zo snel mogelijk contact met u op.
Email info@gold-estates.be
Kantoor België: Moeistraat 20G, 9830 St-Martens-Latem
Kantoor Spanje: Av. Marina Baixa 11, 03570 La Villa Joyosa, Alicante
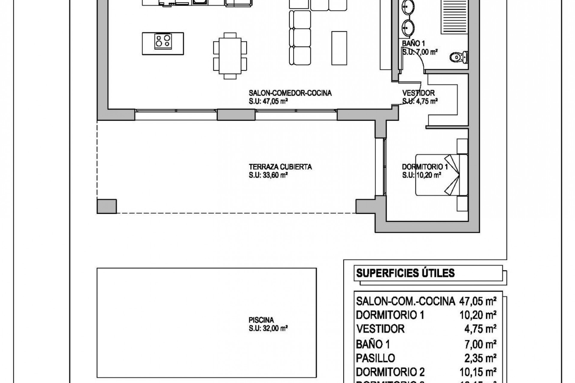
NYBYGGDA VILLOR I PINOSO Nybyggda oberoende moderna villor som kan byggas på rustika eller urbana tomter vi har ett brett utbud tillgängligt i området Pinoso: - 3 sovrum, 2 badrum - Privat pool - Full installation av luftkonditionering - Fullt utrustat kök - Stort urval av kvalitetsmaterial - El och vatten från elnätet - 4 solpaneler ingår - AA energimärkning - 15.658 m² tomt i Pinoso - 3.000 m² inhägnad tomt för enkelt underhåll - Motoriserad skjutgrind På de rustika tomterna kommer ca 3.000 m2 av den totala tomten att inhägnas och husen kommer att levereras med ca 1.000 m2 grus runt huset. Huset har en privat pool och fotovoltaiska solpaneler för elförsörjningen. Det finns flera rustika tomter att välja mellan på olika platser, var och en med olika pris (i de priser som publiceras i denna annons har en tomt med ett värde av 40.000 eur beaktats, om köparen väljer en annan tomt kommer det slutliga priset att räknas om i enlighet därmed). Leveranstiden är 8 månader från beviljandet av bygglovet. Den förvärvas enligt ett system med egen marknadsföring: köparen gör inbetalningar på priset allteftersom byggherren utför arbetet.
Deze informatie is hier onderhevig aan fouten en maakt geen deel uit van een contract. De aanbieding kan zonder kennisgeving worden gewijzigd of ingetrokken. Prijzen zijn exclusief aankoopkosten.
Jouw droomleven in Spanje begint met onze handige gids! In 4 stappen maken we jou wegwijs onder de Spaanse zon.
E-Mail info@gold-estates.be
Kantoor België: Moeistraat 20G, 9830 St-Martens-Latem
Kantoor Spanje: Av. Marina Baixa 11, 03570 La Villa Joyosa, Alicante
Vind uw droomhuis door uw panden te bewaren en meldingen te ontvangen over nieuwe beschikbare panden.
Nieuwe gebruiker registrerenAllereerst bedankt dat je contact met ons hebt opgenomen.
We hebben uw verzoek met betrekking tot de eigenschap referentie ontvangen:GE2-44743. Een van onze agenten neemt zo snel mogelijk contact met u op.
Allereerst bedankt dat je contact met ons hebt opgenomen.
We hebben een aanvraag voor een rapport ontvangen als u de prijs van het onroerend goed met de referentie verlaagt: GE2-44743
Bekijk in de tussentijd eens een selectie van vergelijkbare woningen die voor u van belang kunnen zijn: