First of all, thanks for contacting us.
We have received your request regarding the property reference: GE2-44743. One of our agents will contact you as soon as possible.
Email info@gold-estates.be
Belgium office: Moeistraat 20G, 9830 St-Martens-Latem
Spain office: Av. Marina Baixa 11, 03570 La Villa Joyosa, Alicante
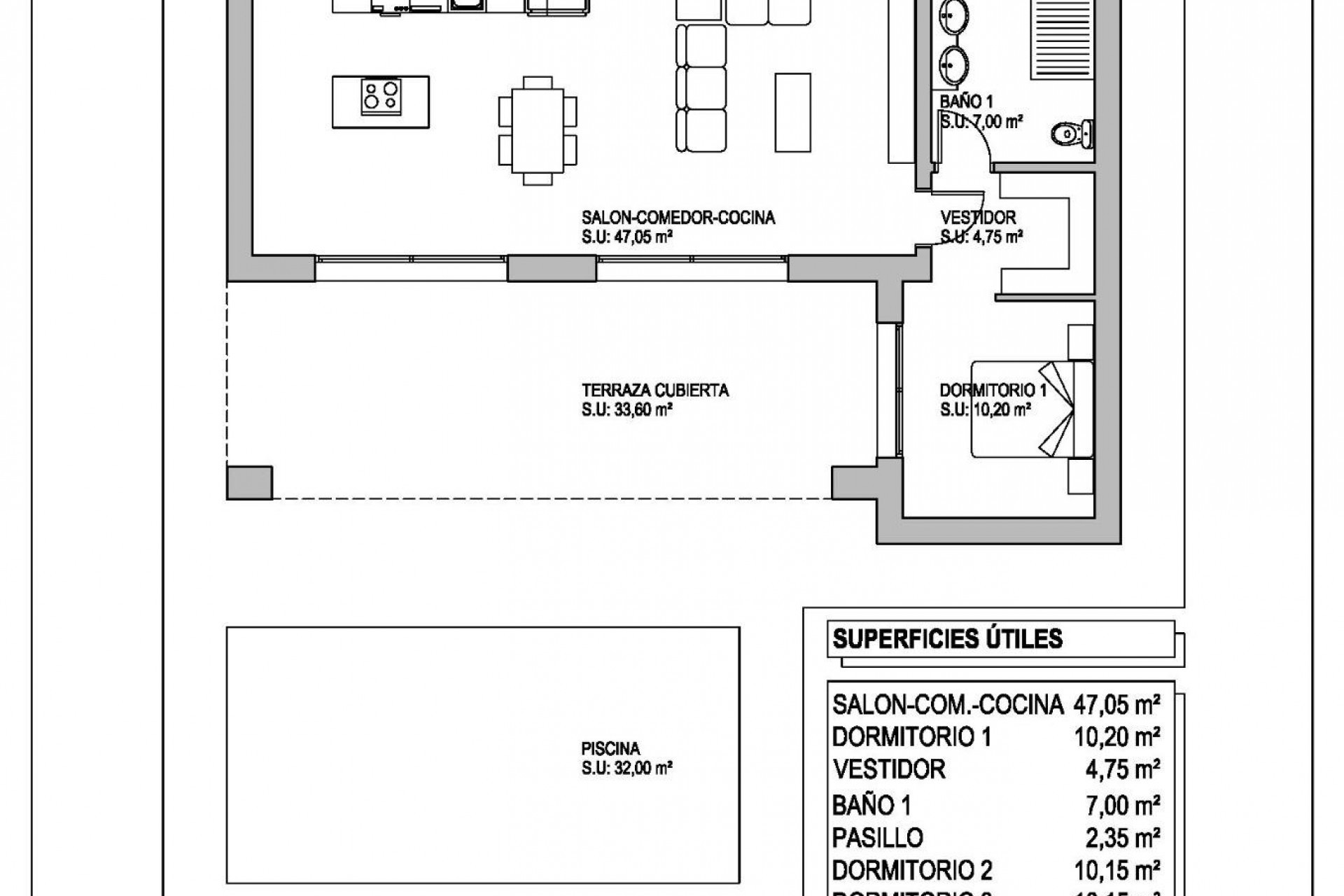
NEW BUILD VILLAS IN PINOSO New Build Independent modern villas that can be built on rustic or urban plots of land we have a wide range available in the area of Pinoso: •3 bedrooms, 2 bathrooms • Private swimming pool • Full installation of air conditioning • Full equipped kitchen • Big choice of quality materials • Mains electricity and water • 4 solar panels included • AA Energy Label • 15.658 m² plot in Pinoso • 3.000 m² fenced plot for easy maintenance • Motorised sliding gate On the rustic plots, about 3.000 m2 of the total plot will be fenced and the houses will be delivered with about 1.000 m2 of gravel around the house. The house has a private swimming pool and photovoltaic solar panels for the electricity supply. There are several rustic plots to choose from in different locations, each with a different price (in the prices published in this advert a plot with a value of 40.000 eur has been considered, if the buyer chooses another plot, the final price will be recalculated accordingly). The delivery period is 8 months from the granting of the building licence. It is acquired under a self-promotion regime: the buyer makes payments on account of the price as the builder executes the work.
This info given here is subject to errors and do not form part of any contract. The offer can be changed or withdrawn without notice. Prices do not include purchase costs.
Your dream life in Spain starts with our handy guide! In 4 steps, we’ll get you started under the Spanish sun.
E-Mail info@gold-estates.be
Belgium office: Moeistraat 20G, 9830 St-Martens-Latem
Spain office: Av. Marina Baixa 11, 03570 La Villa Joyosa, Alicante
Find your dream home by saving your properties and receiving alerts about new properties available.
Register new userFirst of all, thanks for contacting us.
We have received your request regarding the property reference: GE2-44743. One of our agents will contact you as soon as possible.
First of all, thanks for contacting us.
We have received a request for a report if you lower the price of the property with the reference: GE2-44743
In the meantime, please have a look at this selection of similar properties, that might be of interest to you: