Zunächst einmal, vielen Dank für Ihre Kontaktaufnahme.
Wir haben Ihre Anfrage bezüglich des Eigentumsverweises erhalten:GE2-73010. Einer unserer Mitarbeiter wird sich so schnell wie möglich mit Ihnen in Verbindung setzen.
Email info@gold-estates.be
Büro in Belgien: Moeistraat 20G, 9830 St-Martens-Latem
Büro in Spanien: Av. Marina Baixa 11, 03570 La Villa Joyosa, Alicante
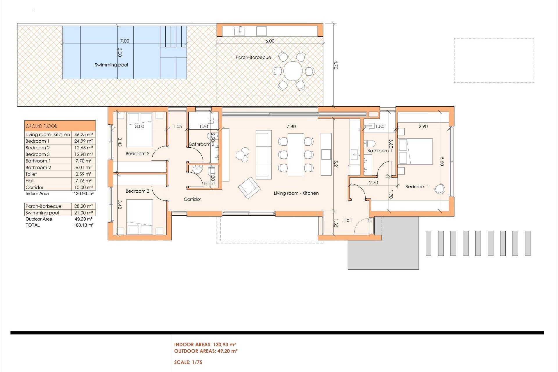
NEU GEBAUTE VILLEN IM ALTAONA GOLF RESORT, MURCIA Neubau einer außergewöhnlichen Villenanlage inmitten des wunderschönen Altaona Resorts in Murcia. Diese exklusive Enklave bietet einen idealen Rahmen, um die nahtlose Verschmelzung von luxuriösem Wohnen und dem ruhigen mediterranen Lebensstil zu erleben. Spüren Sie, wie die Landschaft durch die großen Fenster in das Haus eindringt. Der Garten erhält eine große Präsenz und ist Teil des Wesens der Villa. Im Inneren sind sie geräumig und hell, so dass das mediterrane Licht die Räume durchfluten kann. Neubauvillen mit offener Küche, 3 Schlafzimmern, 2 Bädern, Gäste-WC, Terrasse, Privatgarten mit Pool und Parkplatz. Merkmale: - Die Häuser haben einen Energieausweis der Klasse A. - Klimaanlage mit Kanalisation und Wärmepumpe. Im ganzen Haus, außer in den Bädern. - Elektrische Fußbodenheizung im Wohnzimmer und in den Bädern mit individuellem Thermostat pro Zone. - Lufterneuerungsanlage in der Küche, den Bädern, der Waschküche und der Gästetoilette. - Küche Inklusive Dunstabzugshaube und elektrischem Induktionskochfeld mit 3 Kochstellen. - Inklusive LED-Beleuchtung im Wohnzimmer, Flur und Außenbereich. Der Rest der Räume ist für den zukünftigen Eigentümer vorbereitet, um seine Beleuchtung zu installieren. - USB-Steckdosen in allen Schlafzimmern. - Elektronische Gegensprechanlage für den Zugang von außen zum Innenweg. Türklingel am Eingang des Hauses. - Hausautomatisierungssystem mit zwei intelligenten Schaltern. - Privater Landschaftsgarten mit Tropfbewässerungssystem und Pool. - Außenumzäunung der Urbanisation. - Zufahrtstore zur Urbanisation: Schiebetor aus Metall mit Fernöffnungssystem. Die Wohnanlage befindet sich in Altaona Golf, nur 15 Autominuten vom Zentrum der Hauptstadt Murcia und 20 Minuten von den Stränden entfernt. Genießen Sie die Ruhe und Sicherheit, die Ihnen der Golfplatz mit seinen 18 Löchern bietet, und den Komfort, in der Nähe aller Dienstleistungen zu wohnen. Murcias Flughafen Corvera ist nur 15 Autominuten entfernt.
Diese hier angegebenen Informationen unterliegen Fehlern und sind nicht Bestandteil eines Vertrages. Das Angebot kann ohne vorherige Ankündigung geändert oder zurückgezogen werden. Die Preise beinhalten keine Einkaufskosten.
Ihr Traumleben in Spanien beginnt mit unserem praktischen Reiseführer! In 4 Schritten ermöglichen wir Ihnen den Start unter der spanischen Sonne.
E-Mail info@gold-estates.be
Büro in Belgien: Moeistraat 20G, 9830 St-Martens-Latem
Büro in Spanien: Av. Marina Baixa 11, 03570 La Villa Joyosa, Alicante
© 2026 Gold Estates · Rechtlicher Hinweis · Privatsphäre · Cookies · BIV Legale Informatie · Web-Karte
Entwurf & CRM: Mediaelx
Finden Sie Ihr Traumhaus, indem Sie Ihre Immobilien speichern und Benachrichtigungen zu neuen verfügbaren Immobilien erhalten
Neuen Benutzer registrierenZunächst einmal, vielen Dank für Ihre Kontaktaufnahme.
Wir haben Ihre Anfrage bezüglich des Eigentumsverweises erhalten:GE2-73010. Einer unserer Mitarbeiter wird sich so schnell wie möglich mit Ihnen in Verbindung setzen.
Zunächst einmal, vielen Dank für Ihre Kontaktaufnahme.
Wir haben eine Anfrage für einen Bericht erhalten, wenn Sie den Preis der Immobilie mit der Referenz senken: GE2-73010
In der Zwischenzeit sehen Sie sich bitte diese Auswahl ähnlicher Objekte an, die für Sie von Interesse sein könnten: