Dziękujemy za kontakt z naszym biurem
We have received your request regarding the property reference: GE2-73010. One of our agents will contact you as soon as possible.
Email info@gold-estates.be
Biuro w Belgii: Moeistraat 20G, 9830 St-Martens-Latem
Biuro w Hiszpanii: Av. Marina Baixa 11, 03570 La Villa Joyosa, Alicante
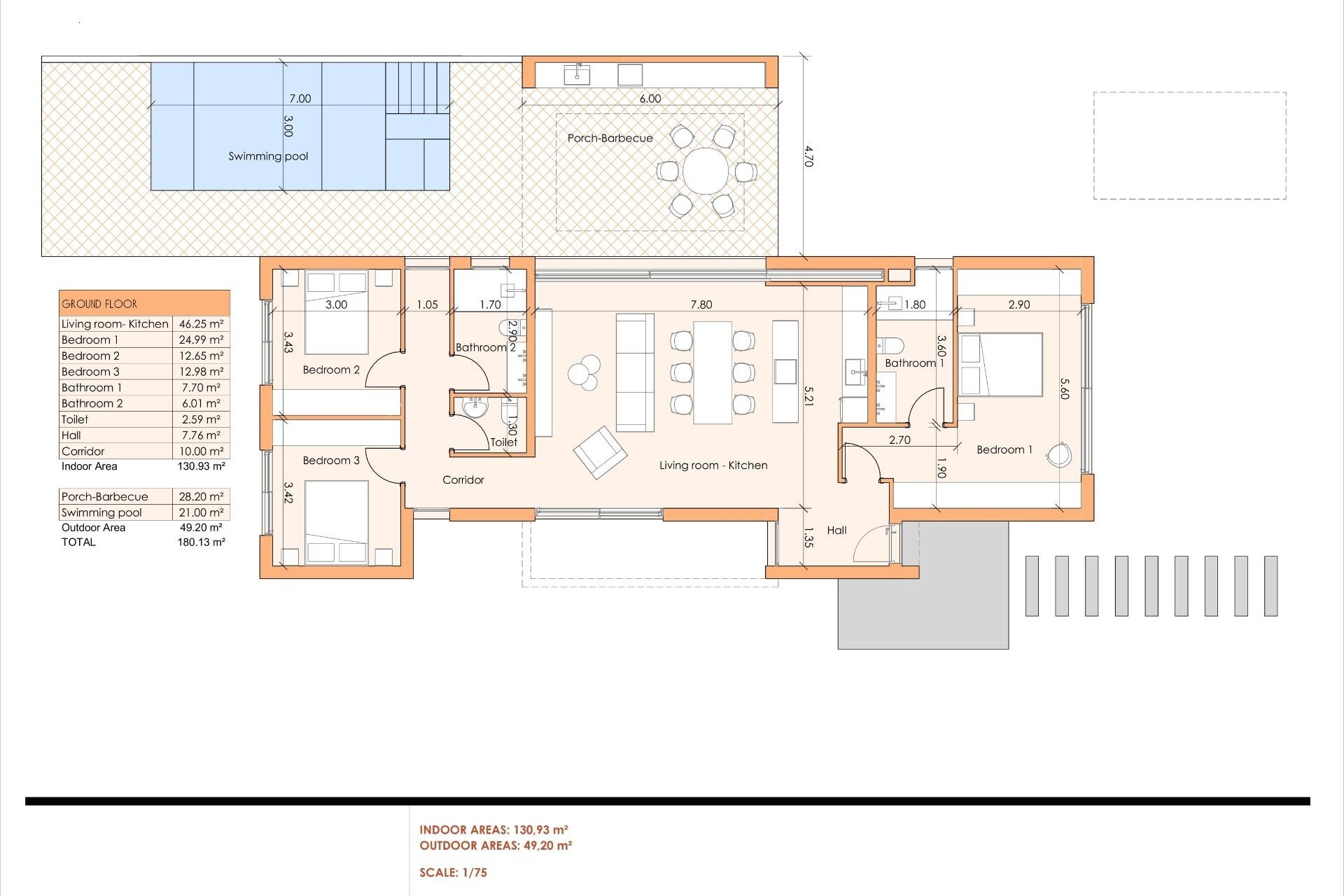
RYNEK PIERWOTNY WILLE W OŚRODKU GOLFOWYM ALTAONA, MURCJA Rynek Pierwotny budynek to niezwykły kompleks willi położony w pięknym kurorcie Altaona w Murcji. Ta ekskluzywna enklawa zapewnia idealne warunki do doświadczania płynnego połączenia luksusowego życia i spokojnego śródziemnomorskiego stylu życia. Poczuj, jak krajobraz wchodzi do domu przez duże okna. Ogród zyskuje wielką obecność i stanowi część samej istoty willi. Wewnątrz są przestronne i jasne, zaprojektowane tak, aby śródziemnomorskie światło zalewało ich pokoje. Nowe wille z otwartą kuchnią, 3 sypialniami, 2 łazienkami, toaletą dla gości, tarasem, prywatnym ogrodem z basenem i miejscem parkingowym. Cechy: - Nieruchomości posiadają certyfikat energetyczny A. - Klimatyzacja kanałowa z pompą ciepła. W całym domu z wyjątkiem łazienek. - Elektryczne ogrzewanie podłogowe w salonie i łazienkach z indywidualnym termostatem na strefę. - System wymiany powietrza w kuchni, łazienkach, pralni i toalecie dla gości. - Kuchnia Zawiera okap i elektryczną płytę indukcyjną z 3 punktami gotowania. - Oświetlenie LED w salonie, przedpokoju i na zewnątrz. Reszta pomieszczeń jest przygotowana do zainstalowania oświetlenia przez przyszłego właściciela. - Gniazda USB we wszystkich sypialniach. - Elektroniczny domofon zapewniający dostęp z zewnątrz do wewnętrznej ścieżki. Dzwonek do drzwi przy wejściu na posesję. - System automatyki domowej z dwoma inteligentnymi przełącznikami. - Prywatny ogród krajobrazowy z systemem nawadniania kropelkowego i basenem. - Zewnętrzne ogrodzenie urbanizacji. - Bramy wjazdowe do urbanizacji: Metalowa brama przesuwna z systemem zdalnego otwierania. Rezydencja położona w Altaona Golf, zaledwie 15 minut jazdy samochodem od centrum stolicy Murcji i 20 minut od plaż, może cieszyć się spokojem i bezpieczeństwem oferowanym przez pole golfowe z 18 dołkami oraz komfortem życia w pobliżu wszystkich usług. Lotnisko Corvera w Murcji oddalone jest o zaledwie 15 minut jazdy samochodem.
Informacja podana tutaj jest orientacyjna i nie stanowi części żadnej umowy. Oferta może zostać zmieniona lub wycofana bez uprzedniego powiadomienia. Ceny nie obejmują kosztów zakupu
Twoje wymarzone życie w Hiszpanii zaczyna się od naszego podręcznego przewodnika! W 4 krokach pomożemy Ci rozpocząć pracę pod hiszpańskim słońcem.
E-Mail info@gold-estates.be
Biuro w Belgii: Moeistraat 20G, 9830 St-Martens-Latem
Biuro w Hiszpanii: Av. Marina Baixa 11, 03570 La Villa Joyosa, Alicante
© 2026 Gold Estates · Nota prawna · Prywatność · Cookies · BIV Legale Informatie · Mapa strony
Projekt & CRM: Mediaelx
Znajdź swój wymarzony dom, zapisując swoje nieruchomości i otrzymując powiadomienia o nowych dostępnych nieruchomościach
Zarejestruj nowego użytkownikaDziękujemy za kontakt z naszym biurem
We have received your request regarding the property reference: GE2-73010. One of our agents will contact you as soon as possible.
Dziękujemy za kontakt z naszym biurem
We have received your request regarding the property reference: %s. One of our agents will contact you as soon as possible.: GE2-73010
In the meantime, please have a look at this selection of similar properties, that might be of interest to you: