Allereerst bedankt dat je contact met ons hebt opgenomen.
We hebben uw verzoek met betrekking tot de eigenschap referentie ontvangen:GE2-73010. Een van onze agenten neemt zo snel mogelijk contact met u op.
Email info@gold-estates.be
Kantoor België: Moeistraat 20G, 9830 St-Martens-Latem
Kantoor Spanje: Av. Marina Baixa 11, 03570 La Villa Joyosa, Alicante
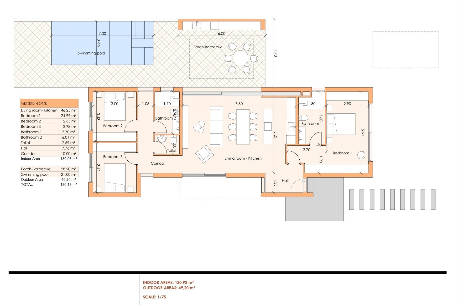
NIEUWBOUW VILLA'S IN ALTAONA GOLF RESORT, MURCIA Nieuwbouw een buitengewone ontwikkeling van villa's genesteld in het prachtige Altaona Resort in Murcia. Deze exclusieve enclave biedt een ideale omgeving om de naadloze samensmelting van luxe wonen en de rustige mediterrane levensstijl te ervaren. Voel hoe het landschap het huis binnenkomt door de grote ramen. De tuin krijgt een grote aanwezigheid en maakt deel uit van de essentie van de villa. Binnen zijn ze ruim en licht, ontworpen om het mediterrane licht door de kamers te laten stromen. Nieuwbouwvilla's met open keuken, 3 slaapkamers, 2 badkamers, gastentoilet, terras, privétuin met zwembad en parkeerplaats. Kenmerken: - De woningen hebben Energie Certificaat Rating A. - Airconditioning met kanaalsysteem en warmtepomp. In het hele huis behalve in de badkamers. - Elektrische vloerverwarming in de woonkamer en badkamers met individuele thermostaat per zone. - Luchtverversingssysteem in de keuken, badkamers, wasruimte en gastentoilet. - Keuken Inclusief afzuigkap en elektrische inductiekookplaat met 3 kookpunten. - Inclusief LED-verlichting in de woonkamer, hal en buiten. De rest van de kamers zijn voorbereid voor de toekomstige eigenaar om hun verlichting te installeren. - USB-aansluitingen in alle slaapkamers. - Elektronische intercom voor toegang van buiten naar binnen. Deurbel bij de ingang van het huis. - Domoticasysteem met twee slimme schakelaars. - Aangelegde privétuin met druppelirrigatiesysteem en zwembad. - Buitenomheining van de urbanisatie. - Toegangspoorten voor voertuigen tot de urbanisatie: Metalen schuifpoort met systeem om op afstand te openen. Residentieel gelegen in Altaona Golf op slechts 15 minuten met de auto van het centrum van de hoofdstad Murcia en op 20 minuten van de stranden kunt u genieten van de rust en veiligheid die de golfbaan biedt met 18 holes en het comfort om dicht bij alle diensten te wonen. De luchthaven van Murcia, Corvera, ligt op slechts 15 minuten rijden.
Deze informatie is hier onderhevig aan fouten en maakt geen deel uit van een contract. De aanbieding kan zonder kennisgeving worden gewijzigd of ingetrokken. Prijzen zijn exclusief aankoopkosten.
Jouw droomleven in Spanje begint met onze handige gids! In 4 stappen maken we jou wegwijs onder de Spaanse zon.
E-Mail info@gold-estates.be
Kantoor België: Moeistraat 20G, 9830 St-Martens-Latem
Kantoor Spanje: Av. Marina Baixa 11, 03570 La Villa Joyosa, Alicante
Vind uw droomhuis door uw panden te bewaren en meldingen te ontvangen over nieuwe beschikbare panden.
Nieuwe gebruiker registrerenAllereerst bedankt dat je contact met ons hebt opgenomen.
We hebben uw verzoek met betrekking tot de eigenschap referentie ontvangen:GE2-73010. Een van onze agenten neemt zo snel mogelijk contact met u op.
Allereerst bedankt dat je contact met ons hebt opgenomen.
We hebben een aanvraag voor een rapport ontvangen als u de prijs van het onroerend goed met de referentie verlaagt: GE2-73010
Bekijk in de tussentijd eens een selectie van vergelijkbare woningen die voor u van belang kunnen zijn: