First of all, thanks for contacting us.
We have received your request regarding the property reference: GE2-73010. One of our agents will contact you as soon as possible.
Email info@gold-estates.be
Belgium office: Moeistraat 20G, 9830 St-Martens-Latem
Spain office: Av. Marina Baixa 11, 03570 La Villa Joyosa, Alicante
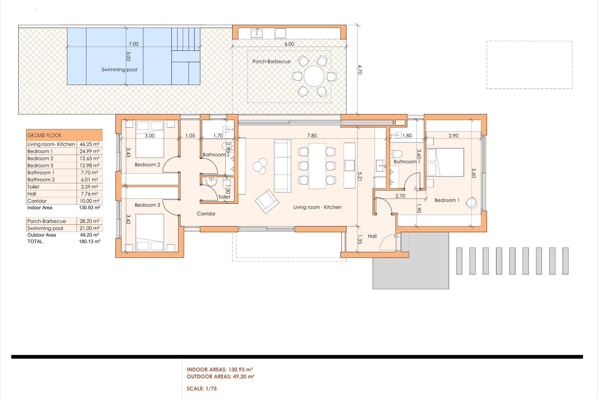
NEW BUILD VILLAS IN ALTAONA GOLF RESORT, MURCIA New Build an extraordinary development of villas nestled within the beautiful Altaona Resort in Murcia. This exclusive enclave provides an ideal setting for experiencing the seamless fusion of luxury living and the tranquil Mediterranean lifestyle. Feel how the landscape enters the home through the large windows. The garden acquires a great presence and forms part of the very essence of the villa. Inside they are spacious and light, designed to let the Mediterranean light flood through their rooms. New Build villas with open plan kitchen, 3 bedrooms, 2 bathrooms, guest toilet, terrace, private garden with pool and parking space. Features: • The properties have Energy Certificate Rating A. • Ducted air conditioning installation with heat pump. Throughout the house except for bathrooms. • Electric underfloor heating in the living room and bathrooms with individual thermostat per zone. • Air renewal system in the kitchen, bathrooms, laundry room, and guest toilet. • Kitchen Includes extractor hood and electric induction hob with 3 cooking points. • Includes LED lighting in the living room, hallway, and exterior. The rest of the rooms are prepared for the future owner to install their lighting. • USB sockets in all bedrooms. • Electronic intercom for access from the exterior to the interior path. Doorbell at the property entrance. • Home automation system with two smart switches. • Private landscaped garden with drip irrigation system and the pool. • Exterior fencing of the urbanisation. • Vehicle access gates to the urbanisation: Metal sliding gate with remote opening system. Residential located in Altaona Golf just 15 minutes by car from the centre of Murcia capital and 20 minutes from the beaches you can enjoy the tranquillity and security offered by the Golf Course that has 18 holes and the comfort to live close to all services. Murcias airport Corvera only 15 minutes drive away.
This info given here is subject to errors and do not form part of any contract. The offer can be changed or withdrawn without notice. Prices do not include purchase costs.
Your dream life in Spain starts with our handy guide! In 4 steps, we’ll get you started under the Spanish sun.
E-Mail info@gold-estates.be
Belgium office: Moeistraat 20G, 9830 St-Martens-Latem
Spain office: Av. Marina Baixa 11, 03570 La Villa Joyosa, Alicante
Find your dream home by saving your properties and receiving alerts about new properties available.
Register new userFirst of all, thanks for contacting us.
We have received your request regarding the property reference: GE2-73010. One of our agents will contact you as soon as possible.
First of all, thanks for contacting us.
We have received a request for a report if you lower the price of the property with the reference: GE2-73010
In the meantime, please have a look at this selection of similar properties, that might be of interest to you: